Keep a cool head at passport control
The modernisation of Hannover-Langenhagen Airport was under- taken primarily with security in mind, but flexibility and smooth processes also play an increasingly important role as the number of passenger increases.
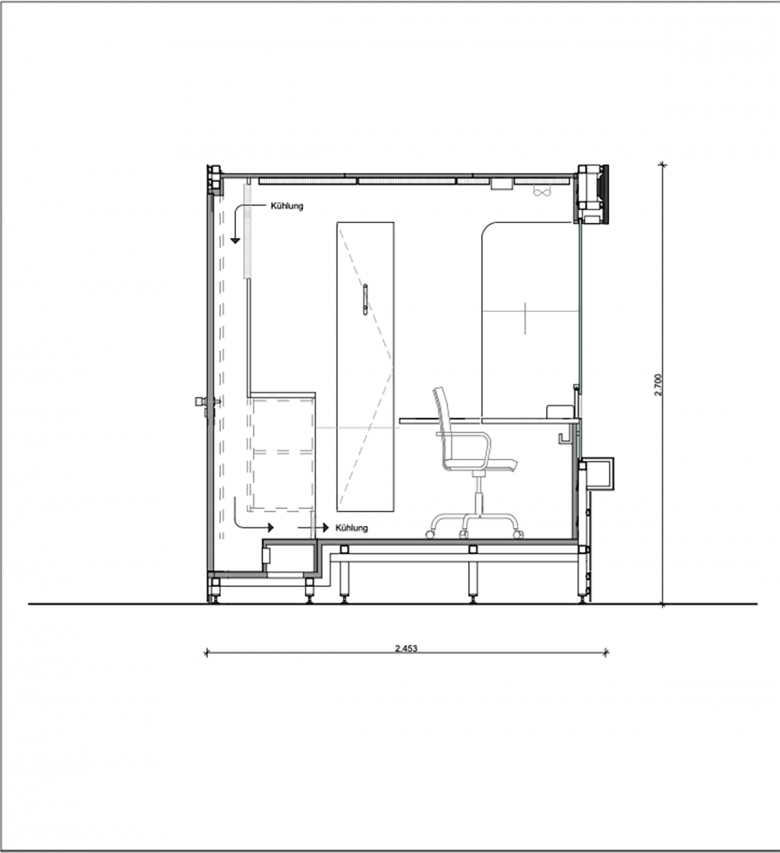
In cooperation with the airport company and the Federal Police, Hannibal Interior Design developed new passport control counters. Safety-relevant and technical requirements have to be met in a very small area, but thermal and air-hygienic comfort are also essential so that employees remain concentrated and efficient. For this, the experts relied in GraviVent – the silent gravity coo- ling system from TTC Technology. The extremely high loads require a powerful cooling system, which, for architectural reasons, also had to be largely invisible. Silent operation without ventilation and without draughts ensures a pleasant climate for working through natural convection – even in such a confined space.
The coolers are controlled according to the wet-bulb temperature and are operated in a sliding mode. The flow temperature of the cooling water is 12 °C; the water is recirculated at 14 °C.
GraviVent®
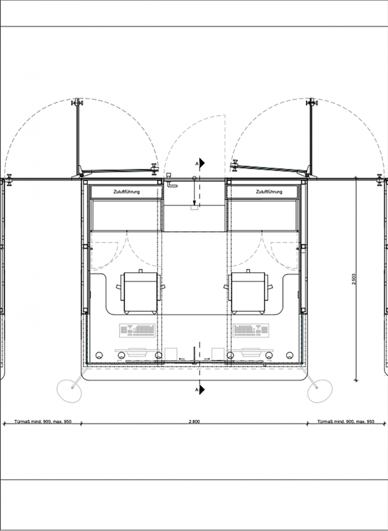
→ 34 units cooling convectors type AISI-W 08.51.2x2, suitable for performance class 2, for condensate accu- mulation, 800 x 525 x 153 mm [L x H x D],
incl. mounting system for installation in drop shafts
→ Horizontal outlet of cooled circulating air from the bottom of the drop shaft, which is then distributed in the room
→ The simplest possible design for use in on-site drop shafts
→ Condensate drain connection towards the drop shaft
Homogeneous grids
Air outlets with filigree linear gratings
→ Aluminium linear gratings type LSF 18/3.10 with 10 mm bar spacing = 70 % air passage, aluminium angle frames 20 x 20 x 2 mm with 4 mounting brackets per grating,
air inlet 34 units 893 x 624 mm [L x W], air outlet 34 units 893 x 224 mm [L x W]
→ Surface white powdered
Technical Specification
Cooling
→ Room temperature 26 °C
Supply temperature 12 °C
Return temperature 14 °C
Temperature difference Δυm 13 K
Efficient duct height (Hactive) 1.8 m
Cooling capacity finned unit length 550 W/m






