Johanna-Moosdorf-Schule, Gymnasium der Stadt Leipzig
Die höchste Schule Leipzigs
Am 22. August 2024 wurde die neu gegründete Johanna-Moosdorf-Schule in Leipzig-Thonberg eröffnet. 1.400 Schülerinnen und Schüler und 120 Lehrkräfte finden ihren Lern- und Lebensraum im höchsten Schulgebäude der Stadt. Das Gymnasium und die Sporthallen sind auf bis zu sieben Geschossen gestapelt, um den Verbrauch wertvollen Grund und Bodens zu minimieren, ein seltenes innerstädtisches Biotop zu erhalten und großzügige Schul- und Sportfreiflächen zu ermöglichen. Der hohe Schulbaukörper mit seinen weit sichtbaren Uhren markiert den Stadteingang in das Zentrum von Leipzig.
Seit der deutschen Wiedervereinigung lag das Grundstück an der Prager Straße in der Nähe der Alten Messe brach. Die Reste gründerzeitlicher Wohnbebauung waren zu Beginn der 1990er Jahre abgebrochen und das Grundstück nicht wieder bebaut worden. So konnte sich über Jahrzehnte an der prominenten Kreuzung von Prager Straße und Philipp-Rosenthal-Straße ein kleines innerstädtisches Biotop entwickeln, in dem heute Fledermäuse, Brutvögel und seltene Rosenkäfer ihre Heimat finden.
Nach 80 Jahren wird hier die Johanna-Moosdorf-Schule eröffnet, in Erinnerung an eine Schriftstellerin, die ihren ersten Mann in Auschwitz verlor und sich fortan mit dem im Alltagsleben noch wenig aufgearbeiteten Faschismus auseinandersetzte. Die Schule als Raum der Bildung, der Aufklärung und des Diskurses ist wohl die beste Form, um diesen in Vergessenheit geratenen Ort wieder zu beleben.
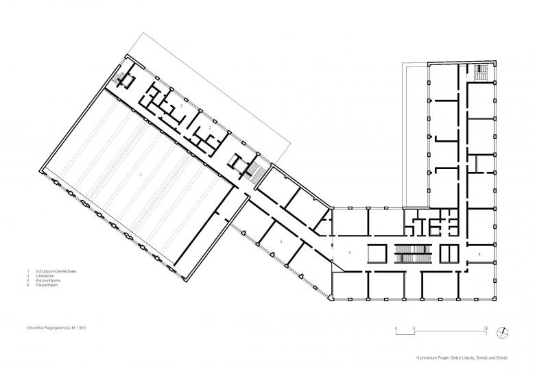
Der von der Straßenkreuzung hinter das Biotop zurückgesetzte Hochpunkt der Schule formuliert ein städtebauliches Zeichen und schafft einen neuen Orientierungspunkt im Stadtraum. Der Schulbaukörper orientiert sich vorrangig entlang der Prager Straße und bildet hier eine schützende und stadtraumfassende Raumkante zu der stark frequentierten Verkehrsachse Prager Straße. Die gestapelten Sporthallen entlang der Philipp-Rosenthal-Straße werden über einen zurückgesetzten Brückenkörper mit der Schule verbunden. Gebäudesetzung und Schulvorplatz bilden die Adresse der Bildungseinrichtung, während die Schul- und Sportfreiflächen im geschützten rückwärtigen Bereich angeordnet sind.
Die Architektur des Schulgebäudes folgt der funktionalen Gliederung des Inneren. Das Erdgeschoss beherbergt öffentliche Bereiche wie Foyer, Bibliothek, Mensa und Aula, die über großzügige Verglasungen eine Verbindung zum Stadtraum herstellen. In den Obergeschossen sind die Unterrichts- und Fachräume um zentrale Flurzonen angeordnet, die als offene Lernlandschaften gestaltet sind. Die Erschließung erfolgt über eine Scherentreppe, die zusammen mit den angrenzenden Lufträumen eine natürliche Belichtung über mehrere Etagen ermöglicht. Über ein zentrales Oberlicht wird Tageslicht in alle Etagen gelenkt, was die offene und kommunikative Atmosphäre im Gebäude unterstützt.
Die gestapelten Sporthallen sind ein zentraler Bestandteil des Projekts. Die untere Dreifachhalle ist als erste paralympische Wettkampfstätte der Stadt konzipiert und u.a. für Sportarten wie Rollstuhlbasketball, Sitzvolleyball und Blindenfußball ausgelegt.
Die obere Dreifachhalle umfasst eine sieben Meter hohe Kletterwand und bietet verschiedene Nutzungsmöglichkeiten für den Schul- und Vereinssport.
Die Schule besteht aus einer materialoptimierten und weitgehend vorgefertigten Stahlbetonkonstruktion, die außen mit heimischem Naturstein bzw. Ziegeln verkleidet ist. Die gestapelten Sporthallen werden aufgrund der großen Spannweiten und dynamischen Lasten aus dem Sportbetrieb mit Spannbeton-Fertigteilträgern überspannt, die mit Spezialkränen eingehoben wurden. Die Raumatmosphäre im Innern wird von farbigen Wand- und Bodenflächen sowie akustisch wirksamen Holzdecken bestimmt.
Die Außenanlagen sind in verschiedene Funktionsbereiche gegliedert. Neben den Pausenflächen für die Schülerinnen und Schüler gibt es begrünte Aufenthaltsbereiche, Hochbeete und Sportfreiflächen. Das bestehende Biotop an der Prager Straße wurde in die Planung integriert und bildet einen naturnahen Übergang zur Stadtlandschaft. Durch diese Gestaltung wird nicht nur ein hoher Aufenthaltswert geschaffen, sondern auch eine nachhaltige Verbindung zwischen gebauter Struktur und umgebender Natur.
Das Bauvorhaben wurde vergleichsweise schnell umgesetzt. Mit der Planung wurde im Juni 2020 begonnen, die Baugenehmigung im September 2021 erteilt, der Baubeginn erfolgte im März 2022 und die Schule wurde im August 2024 eröffnet. Die Ausführung der Bauleistungen erfolgte durch einen Generalunternehmer unter Vorgabe architektonischer Leitdetails für die gestalterisch sensiblen Bereiche.
Mit der Fertigstellung der Johanna-Moosdorf-Schule wurde ein neuer Bildungsstandort geschaffen, der sowohl das schulische Angebot als auch die Sportinfrastruktur in Leipzig erweitert und das Quartier wie auch die Familie der Leipziger Schulbauten nachhaltig bereichert.
- 年份
- 2024
- Project Status
- 已建造
- 客户
- Stadt Leipzig, Amt für Jugend Familie und Bildung, Amt für Gebäudemanagement
- 团队
- Matthias Hönig, Anne Gelhaar, Sophie Klonowski, Charlotte Reh, Romana Kranzbühler, Johannes Irmen
- Freianlagen/Sportanlagen
- r+b landschaft s architektur, D-01097 Dresden
- Tragwerksplanung
- Mathes Beratende Ingenieure GmbH, D-04109 Leipzig
- Thermische Bauphysik, Wärmeschutz, Energiebilanzierung
- Graner Ingenieure GmbH, D-04105 Leipzig
- HLS-Planung
- Zimmermann und Becker GmbH, D-04109 Leipzig
- Akustik
- GAF mbH, D-04275 Leipzig
- Brandschutz
- BCL Brandschutz Consult Ingenieurgesellschaft mbH, D-04315 Leipzig









