Umbau / Neubau Alterswohnungen Storchen
Im Zentrum des Gesamtkonzeptes stand die Neunutzung und Sanierung der Liegenschaft Storchen. Das markante Erscheinungsbild sollte erhalten werden, d.h. die neuen Ergänzungsbauten sollten die besondere Stellung des Storchens respektieren bzw. noch akzentuieren. Damit dies erreicht werden konnte, wurden die nicht erhaltenswerten und ohnehin stark sanierungsbedürftigen übrigen Gebäude auf dem Gesamtareal abgebrochen und der Storchen von den Anbauten befreit.
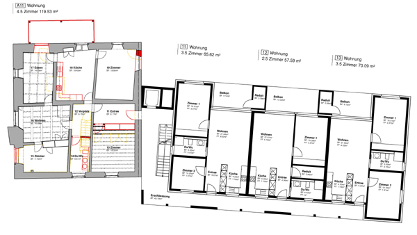
Anstelle des Ökonomiegebäudes wurde ein Neubau mit 9 Alterswohnungen erstellt. Der Storchen und diese Alterswohnungen sind miteinander erschlossen. Im Erdgeschoss des Storchens wurde ein Bistro eingebaut, im 1. und 2. Obergeschoss wurde jeweils eine 4 Zimmer-Wohnung eingebaut.
Die ganze Anlage wurde mit zwei Wohnhäusern mit je 8 Eigentumswohnungen ergänzt. Im Zentrum der Anlage wurde eine Unterflureinstellhalle für alle Häuser errichtet.







