Neubau zwei Einfamilienhäuser

Zwei befreundete Familien haben in Stein am Rhein ein 2000m2 grosses Grundstück gekauft, um dort ihren Wohntraum zu verwirklichen. Zwei am Hang gebaute, von aussen scheinbar identische Häuser liessen doch zwei ganz individuelle, auf den jeweiligen Bauherrn zugeschnittene Wohnformen zu.

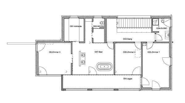
Das 3-gschossige Haus gliedert sich in 3 Zonen: 1. Eingangsgeschoss. Auf Strassenniveau betritt man das Haus und gelangt in den grosszügigen Eingangsbereich. Im rückwärtigen Bereich befindet sich die Treppe. Auf diesem Geschoss befinden sich ebenfalls die Doppelgarage, Keller, Waschküche, Garderobe sowie ein Gästezimmer mit Nasszelle. 2. Wohngeschoss. Der grosse, offen gestaltete und hohe (2.70m) Wohnraum gliedert sich in verschiedene Zonen, Kochen, Essen, Wohnen und Fernsehecke. Lediglich durchbrochen von einem WC. Innen- und Aussenraum fliessen hier ineinander und der Zugang zum grosszügigen Aussenbereich ist auf mehrere Seiten hin möglich. 3. Schlafgeschoss. Auf diesem Geschoss befinden sich das Kinderzimmer mit Nasszelle, ein Büro, sowie der Elternbereich mit Schlafzimmer und Badezimmerlandschaft. Von der Veranda aus lässt sich die Aussicht auf den Rhein geniessen.

年份
2006

以下出品方的其他项目 Oechsli + Partner 

Neubau 4 MFH im Güetli
Schaffhausen, 瑞士
Umbau/Neubau Alterswohnungen
Dörflingen, 瑞士
Fassadensanierung Staatsarchiv und Gerichtsgebäude
Schaffhausen, 瑞士
Neugestaltung Cafeteria Cilag
Schaffhausen, 瑞士
Umbau und Sanierung Vorstadt 13
Schaffhausen, 瑞士