Neubau Mehrfamilienhaus Ebnat
Auf dem ehemaligen Dünner Areal wird ein Neubau mit 21 Wohnungen realisiert. Der Wohnungsmix besteht aus 2 ½ und 3 ½ Zimmer Wohnungen.
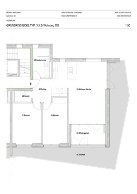
Ein gut durchdachtes Raumkonzept mit wenig Erschliessungsflächen, einem nutzbaren Wintergarten vor dem grossen Balkon und einer straff konzipierten Küche als Wohnmöbel zusammen mit hochwertigen Materialien ergeben ein sinnliches Wohnen in Eigentumsstandard. Raffinierte Detaillösungen von entwickelten Fenster-, Schlosser-, Schreinerarbeiten bieten weiteren Wohnkomfort.
- 年份
- 2015
- Project Status
- 已建造







