Banq Restaurant
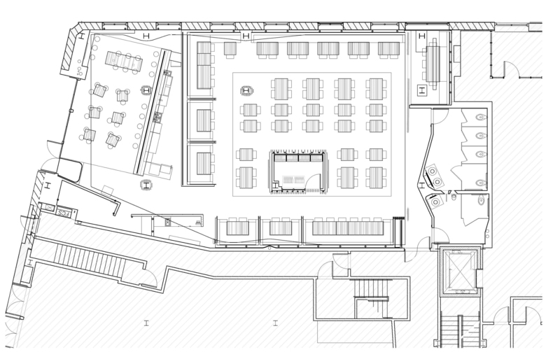
Located in the old Penny Savings Bank, Banq Restaurant capitalizes on the spatial and functional peculiarities of the space as a ground for speculation and invention. Requiring maximum flexibility on the ground for the re-organization of seating arrangements, in contrast the ceiling is encumbered by the myriad of mechanical, structural, and acoustic limits inherited from the building.
Thus, the entire ceiling is covered by a wood-slatted system that encases and conceals the inherited systems, while offering a large canopy under which to dine. The wood slats are designed as a landscape, undulating in relation to the very equipment they conceal overhead, while encasing the columns in the main hall. The wine storage, in the middle of the hall, serves as another point of support for the ceiling, and acts as a monumental trunk, keeping the canopy aloft. Divided into two segments, the front area on Washington Street is programmed as a bar, while the larger hall behind serves as the dining area. An axial view from the street produces the proscenium from which to view the canopy while lateral views give hints of the structural and mechanical devices being concealed.
Credits:
Nader Tehrani_ Office dA_ NADAAA








