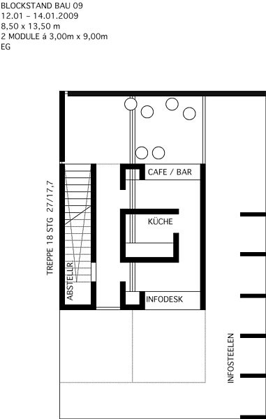
Messestand auf der BAU09
Die Vielfalt des Modulbaus präsentierte ALHO auf der Bau 2009 in München mit Hilfe eines komplexen Baukörpers. Durch das Verschieben des Obergeschosses werden unterschiedlichste räumliche Situationen erlebbar. So beinhalteten die 2 Container im Erdgeschoss den überbauten Empfangsbereich, die allseitig umschlossenen Nebenräume und den offenen Bewirtungsbereich. Eine einläufig gefaltete Stahltreppe führt zu einem großzügigen und offen gestalteten Besprechungsraum im Obergeschoss.
Bei diesem Messestand wurde besonders darauf geachtet den modularen Charakter der Bauweise mit in die Standgestaltung einzubeziehen. Einerseits, um den Messebesuchern das Modulsystem im Maßstab 1:1 vorzuführen, andererseits, um die Stärke des modularen Systems (einfacher Auf- und Abbau) für folgende Messebesuche zu nutzen.
Die Größe der Spanntuchfassade wurde auf die Modulgröße angepasst, sodass die Tragstruktur des Moduls ablesbar erscheint. Durch diese klare Detaillierung reduziert sich die Anzahl der Materialien auf Faserzementplatten, Netzvinyl, Stahl, Teppich und Sperrholz.
- 年份
- 2009






