Wohnhaus Fam. H.

Köln, 德国

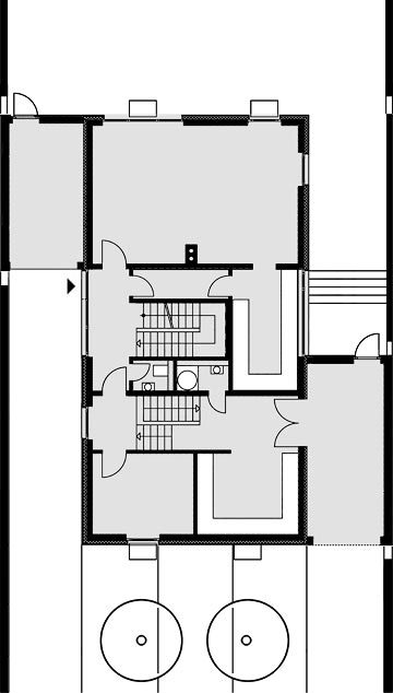
Das Grundstück befindet sich auf einem leicht geneigten Westhang in einem gewachsenen Wohngebiet heterogener Struktur. Im Raumprogramm waren Wohn-Essbereich mit Küche, Atelier- und Bürobereich sowie ein Individual-Bereich mit gemeinsamem Schlafraum und separaten Rückzugsmöglichkeiten für die beiden Hausbewohner vorzusehen. Die drei unterschiedlichen Bereiche und die maximale Ausnutzung des Grundstücks bestimmen die Struktur und die Form des Gebäudes.

Zwei bis an die Grundstücksgrenze gegeneinander verschobene Volumen beinhalten im Süden den Wohn- und Essraum, im Norden Atelier- und Büro, jeweils ergänzt um eine Garage. Mit seinen beiden Bauwich-Garagen nimmt der Neubau die volle Grundstücksbreite zur Straße hin ein und teilt so das handtuchförmige Grundstück in einen halböffentlichen, eher städtischen Raum, über den in der Tiefe das Gebäude erschlossen wird, sowie in einen privaten Freiraum für seine Bewohner. Der straßenseitige Atelier- und Büroteil schottet diesen Bereich durch ein massives Äußeres ab. Der Wohnbereich hingegen öffnet sich nach Süden mit großen Fensterflächen zum Garten. Als drittes Volumen darüber schwebt, getrennt durch eine Fuge aus Glas, der Individualbereich mit seinen Schlafräumen. Die Verknüpfung der drei Bereiche erfolgt über dienende Räume wie Empfang, Vertikalerschließung, Sanitärräume oder der Küche. Die beiden erdgeschossigen Volumen des in massivbauweise errichteten Gebäudes sind mit Eternit-Tafeln bekleidet, das schwebende Obergeschoss mit einem mineralischen Wärmedämmputz. Schiebeläden aus Lärchenholz dienen dort dem verschatten. Im Inneren dominieren wenige Materialien. Parkett- und Grauwacke-Natursteinböden schaffen eine warme Atmosphäre, weiß veputzte Wände einen neutralen Hintergrund.
Dieses Projekt ist auch im Buch „Bauen für Zwei“ enthalten.

年份
2005

以下出品方的其他项目 LHVH ARCHITEKTEN BDA Partnerschaft mbB Lohner Holschbach Voss 

Kapelle Kömpel
Morsbach, 德国
Lichtfaltung
Lüdenscheid, 德国
Umbau eines ehemaligen Postgebäudes
Morsbach, 德国
Messestand auf der BAU09
München, 德国
Über dem Durchschnitt
Köln, 德国