Erweiterungsbau Finanzamt Zwickau
Der Baukörper versteht sich als ergänzender Baustein in der bestehenden Stadtstruktur, er fügt sich daher hinsichtlich seines Volumens, der Höhenetwicklung, Dachform, Farbigkeit und Materialität selbstbewusst, aber sensibel in die Nachbarschaft ein.
Er fungiert zudem als Komplettierung des Gesamtensembles für das Finanzamt, das aus sehr individuellen, teilweise denkmalgeschützten Gebäuden besteht, die aus unterschiedlichen Zeiten von 1900 bis 2000 stammen. Der Übergang zum Bestand erfolgt durch einen Zwischenbau, der sich durch seine geometrische Ausbildung und abweichende Materialität zurücknimmt.
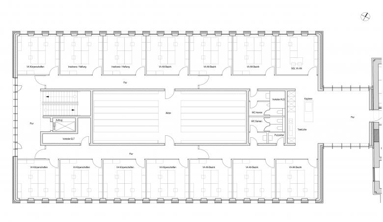
Die Gestaltung der Innenräume ist geprägt von einer klaren und funktionalen Grundrissgestaltung. Die dreispännige Anordnung beherbergt Büroräume an den Außenwänden und Aktenarchive in der Mittelzone.
Das Dachgeschoss beherbergt einen Schulungsraum mit Stuhllager, Teeküche und WC-Anlagen und schließt den Baukörper nach oben ab. Es nimmt Bezug auf die traditionellen Dachformen der Umgebung (Mansarddächer, Walmdächer, Giebeldächer) und schafft durch die Verwendung des Materials Titanzink eine Verbindung zu den Bestandsbauten.
Die klare und kompakte Ausbildung des Baukörpers ist vorteilhaft im Hinblick auf die Nachhaltigkeit und das Energiekonzept, so dass die Umsetzung des gewählten Passivhausstandards begünstigt wird.
Die Fassaden werden geprägt von der streng funktional gereihten Anordnung stehender Öffnungen und der fein detaillierten Ziegelverkleidung aus hellockerfarbenen Steinen. Durch die Ziegelfassade wird das örtlich stark verbreitete Baumaterial aufgenommen und gleichzeitig sehr eigenständig interpretiert.
Die Anordnung der fein differenzierten Ziegeltexturen in Bändern, die an den Gebäudecken in der Höhenlage verspringen, sorgt für ein charakteristisch flächiges und abstraktes Erscheinungsbild Gebäudes und stellt ein wichtiges Gestaltungsmerkmal für den Baukörper mit seinen großen Flächen dar. So wird mit zeitgenössischen Mitteln auf den großen Detailreichtum der historischen Nachbarfassaden Bezug genommen.
Der Ziegelverband ist im flämischen Verband ausgeführt. Die Läufersteine des Verbandes bleiben in allen Bereichen immer gleich. Die Binder werden in den Brüstungsbereichen etwas herausgezogen, während sie in Höhe der Fenster an den Stirnseiten leicht nach innen gesetzt werden.
Bereits im Vorfeld wurde die reliefierte Ausführung im Detail mit Verbandsvertretern der Ziegelindustrie konzipiert. Zudem konnten nach Vergabe mit dem sehr versierten Handwerksbetrieb alle Aspekte der handwerklichen Umsetzung besprochen, im Detail geplant und in einem Fassadenmuster erprobt werden. Dabei wurden insbesondere die geplanten Reliefs und die Aspekte der Maßhaltigkeit, der Farbigkeit, Fugenausbildung und Fugenfärbung präzise bewertet werden.
- 年份
- 2018




















