Hochspannungsversuchsfeld
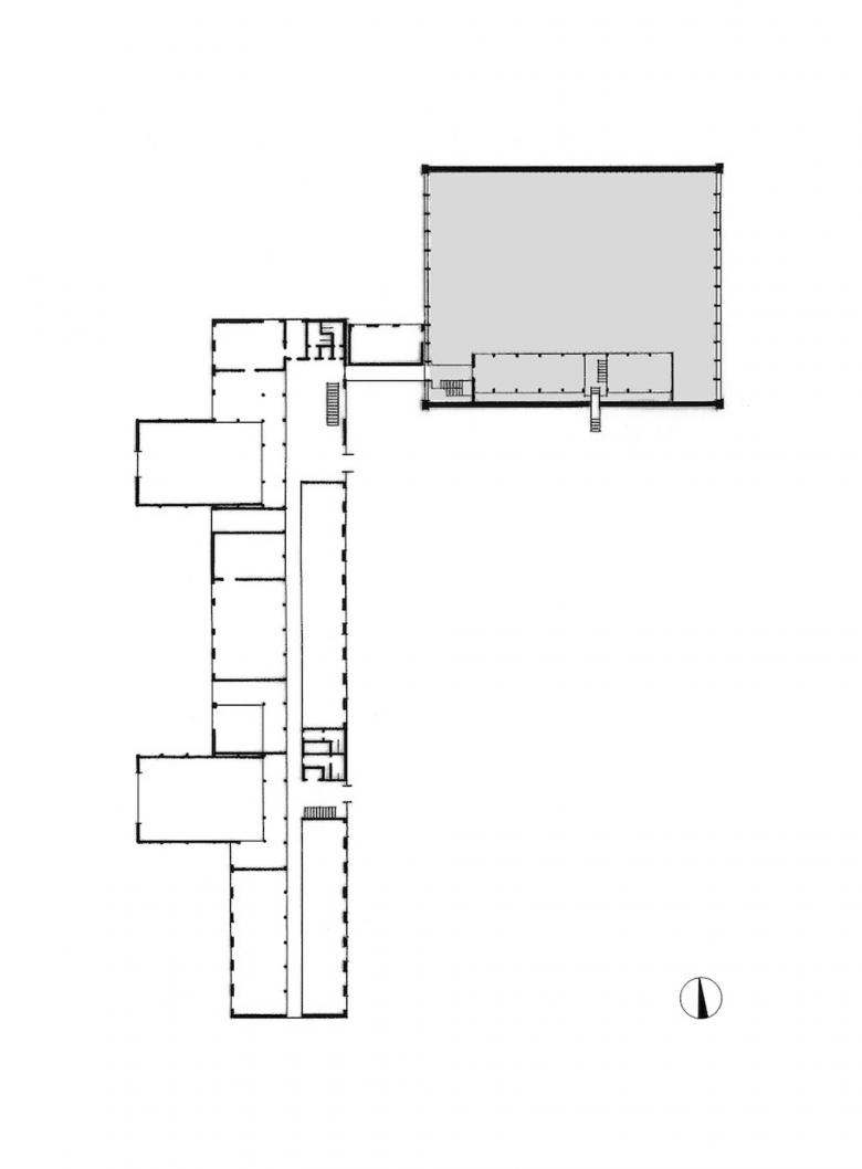
Im Jahr 1958 erhielt Walter Henn von den Siemens-Schuckertwerken den Auftrag, in Berlin-Siemensstadt ein Hochspannungsversuchsfeld zu errichten. Die Anlage besteht aus einem Laborgebäude, zwei kleinen Prüfhallen und einer großen Hochspannungshalle.
Das Laborgebäude ist ein zweibündiger, zweigeschossiger Stahlbetonskelettbau, dessen Außenwände sind mit Ziegeln ausgefacht und mit mattglasierten, hellgrauen Buchtal-Spaltplatten verkleidet sind. Die Stahl-Fensterprofile wurden stumpf in die Leibung gesetzt und schließen bündig mit der Gebäudefassade ab. Die beiden kleinen Prüfhallen sind als Annexe seitlich an den Labortrakt gegliedert. Ihre Außenhaut bildet eine Aluminiumblech-Verkleidung auf einer Unterkonstruktion aus Stahlprofilen.
Die große Hochspannungshalle, die – durch einen Zwischenbau verbunden – rechtwinklig an das Laborgebäude anschließt, stellte eine besondere Herausforderung dar. Ihre Form und Dimensionen wurden von dem Ausmaß des Spannungskreises bestimmt, wodurch ungenutzter Luftraum im oberen Drittel der Halle vermieden und zusätzliche Nutzfläche am Boden gewonnen werden konnte. Die Strukturierung des Gewölbes in ein Rautenfachwerk wurde mit der ausführenden Firma Beton- & Monierbau entwickelt. Es ermöglichte, die gesamte Halle im Wesentlichen aus nur zwei verschiedenen Stahlbeton-Fertigteilen herzustellen, nämlich aus T-förmigen Balken und aus dreieckförmigen Füllungsplatten. Besondere Aufmerksamkeit wurde der Frage der elektrischen Abschirmung zuteil. Walter Henn fertigte dafür eigens ein Versuchsmodell an, mithilfe dessen er die Bauabteilung des Bauherrn überzeugen konnte, die Halle vollständig in Kupfer ausführen zu lassen. Auf diese Weise konnte man eine aufwendige Auskleidung der Halle umgehen und die Dachhaut auch als Abschirmung nutzen. Bis heute überzeugt die Halle funktional, konstruktiv und ästhetisch und ist als Baudenkmal geschützt.
- 年份
- 1960
- 客户
- Siemens-Schuckertwerke






