Max-Planck-Institut für Psycholinguistik

Nijmegen, 荷兰
照片 © Leon Abraas

Das Max-Planck-Institut für Psycholinguistik liegt am südwestlichen Rand des Universitätscampus der Radboud-Universität inmitten eines weitläufigen Landschaftsschutzraums mit dichtem Waldbestand. Der Schutz dieses kulturhistorisch und ökologisch wertvollen Waldgebietes, das einen Puffer zwischen der dynamischen Radboud-Universität und der ruhigen Wohngegend Brakkenstein darstellt, musste in die Planung der Erweiterung mit einbezogen werden.

Bereits seit 1985 sind die Wissenschaftler in dem Bürobau untergebracht, der im Auftrag der Max-Planck-Gesellschaft von Kraaijvanger Architekten als Mäander konzipiert worden war. 1997 wurde das bestehende Gebäude nach Osten um eine Bibliothek erstmals erweitert. In Verlängerung des Haupteingangs wurde hierbei eine Gebäudeachse entwickelt, die als dreigeschossige Magistrale heute den Gesamtkomplex in West-Ost-Richtung erschließt.

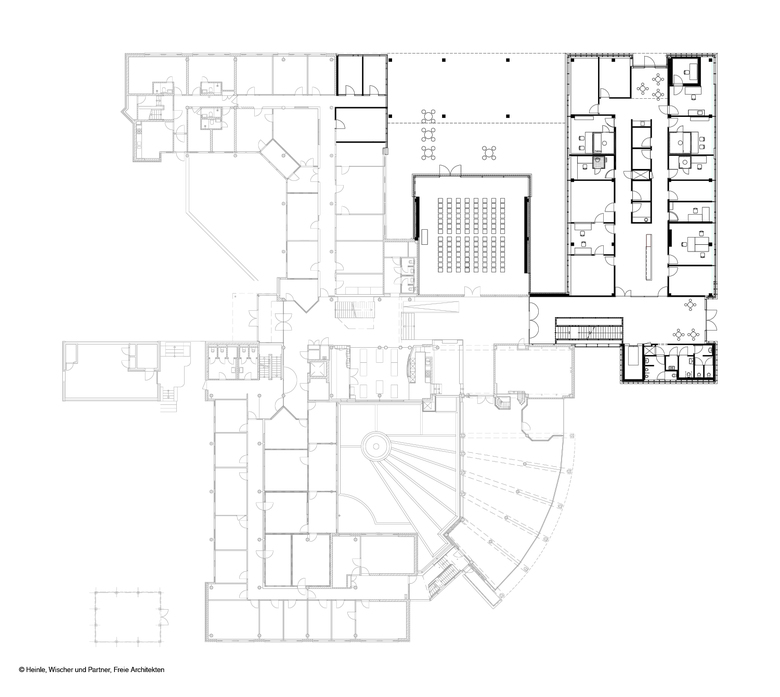
Städtebaulich komplettiert der L-förmige Anbau die heterogene Grundrissstruktur des Max-Planck-Instituts für Psycholinguistik um einen weiteren Gebäudeflügel mit drei Etagen. Das Konstruktions-und Ausbauraster basiert auf dem durchgängigen Achsmaß von 1,20m für Labore und Büros. Auf diesem Raster konnten unterschiedliche Raumkonstellationen in den verschiedenen Ebenen realisiert werden; Experimentallabore und ein Hörsaal für Institutszwecke im Erdgeschoss, Büroräume für Wissenschaftler in den Obergeschossen und molekularbiologische Laboratorien im 2. OG.

An der Nordfassade wurde das Volumen in einen aufgeständerten Baukörper mit zwei Geschossen aufgelöst. Durch die Aufständerung bietet sich vom Innenhof ein attraktiver Ausblick in umgebende Natur und auf den unmittelbar angrenzenden Neubau des „Grotiusgebouw“ der Universität.

Ein wesentliches Charakteristikum des Neubaus sind die opaken Wandflächen, die durch rückseitig beschichtete Glaspaneele das Licht- und Schattenspiel der Umgebung reflektieren. Eigens für dieses Bauvorhaben wurden sämtliche Glasplatten in einem Siebdruckverfahren seriell mit Grafiken abstrahierter Pflanzenmotive bedruckt. Durch Reflexionen der umgebenden Bäume in den spiegelnden Fassadenpaneelen und in den Fenstern wird ein Zusammenspiel mit der umgebenden waldartigen Parklandschaft erreicht.

Aufgabe
Erweiterung Institutsgebäude

Auftraggeber
Max-Planck-Gesellschaft zur Förderung der Wissenschaften e.V., München

Architekt
Heinle, Wischer und Partner Freie Architekten, Stuttgart
Team: Team: Till Behnke (verantwortlicher Partner), Steffen Walter (Projektleitung), Susanne Kern, Andreas Braun, Arta Muciqi, Claudia Wohlfrom
vertreten vor Ort durch
Wiegerinck architectuur stedenbouw, Arnhem

Funktionsprogramm
Molekularbiologische Labore, Sprachlabore, Hörsaal, Büros

Kenndaten
Leistungsphasen: 1–8 HOAI
Wettbewerb: 1. Preis
Planungsbeginn: 05/2011
Baubeginn: 04/2013
Fertigstellung: 12/2014
Nutzfläche: 1.458 m²
Bruttogrundfläche: 2.750 m²

照片 © Leon Abraas
照片 © Leon Abraas
照片 © Georg Engels
照片 © Leon Abraas
照片 © Leon Abraas
图纸 © Heinle, Wischer und Partner, Freie Architekten
图纸 © Heinle, Wischer und Partner, Freie Architekten
年份
2014
客户
Max-Planck-Gesellschaft zur Förderung der Wissenschaften e.V.

以下出品方的其他项目 heinlewischer 

Bundesministerium für Bildung und Forschung (BMBF)
Berlin, 德国
Städtisches Klinikum Brandenburg an der Havel
Brandenburg an der Havel, 德国
Deutsches Krebsforschungszentrum Heidelberg DKFZ, Forschungs- und Entwicklungszentrum für Bildgebung und Radioonkologie
Heidelberg, 德国
Universitätsklinikum Essen
Essen, 德国
7-Tesla-Hochfeldtomograph, Deutsches Krebsforschungszentrum Heidelberg (DKFZ)
Heidelberg, 德国