Volksschule Angedair

Landeck, 奥地利
照片 © Lukas Schaller

Die hundert Jahre alte, denkmalgeschützte Volksschule mitten im Zentrum der Tiroler Bezirkshauptstadt Landeck brauchte dringend ein Update: viel mehr Platz für die SchülerInnen, größere Transparenz und eine neue Raumorganisation, die zeitgemäße Lehrmethoden möglich macht.

Wir haben die erhaltenswerte Bausubstanz saniert, einen Teil abgerissen und in die entstehende Lücke einen neuen Klassentrakt gestellt. Unser Zubau im Schulhof beherbergt eine versenkte Turnhalle, die neue Aula und am Dach oben drauf für die Pausen eine großzügige Terrasse. Der Haupteingang befindet sich in der verglasten Aula, die dem Neubau den Anschein eines schwebenden Körpers im Park gibt.

»Unsere Bedürfnisse nach Licht und Platz wurden von allen Seiten ernst genommen. Das Architekturbüro hat sich nach innen verwirklicht und nicht nach außen ein Denkmal gesetzt.« Daniela Lehmann, Direktorin

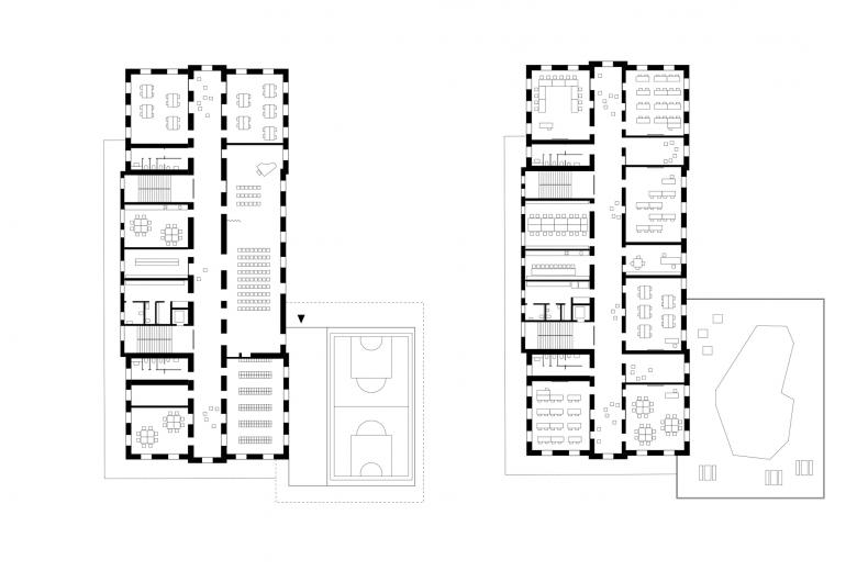
Stärken stärken – Mit dem Schließen der westseitigen Lücke wird der historische Baukörper klarer und steht ruhig und selbstbewusst da. Seine denkmalpflegerisch schützenswerte Qualität mit seiner dominanten Stellung am Platz wird dadurch gestärkt.

»Die neue Volksschule Angedair ist für die Kinder ein großes Wohnzimmer mit vielen Lern- und Spielmöglichkeiten im Innen- und Außenbereich. Die Gemeinde Landeck hat nun eine markante und zeitgemäße Schule in ihrem Zentrum.«
Lucie Vencelidesova, Franz&Sue-Projektleiterin

Weiterbauen – Die beiden Obergeschoße der Schule konnten wir relativ einfach für die gewünschten offenen Lernlandschaften adaptieren. Die Lernzonen sind jeweils an den Gebäudeecken positioniert. Hier werden sie von zwei Seiten belichtet. Die bestehenden Wände haben wir teilweise aufgebrochen und stattdessen mobile Raumteiler eingesetzt – nun können die danebenliegenden Klassenräume nach Bedarf weg- und dazugeschaltet werden.

»Wir haben eng mit Schulleitung und Gemeinde zusammengearbeitet – das Ergebnis ist eine sympathische, moderne Schule, in der sich LehrerInnen und SchülerInnen rundum wohlfühlen.« Erwin Stättner, Franz&Sue-Partner

照片 © Lukas Schaller
照片 © Lukas Schaller
照片 © Lukas Schaller
Grundriss Erdgeschoß+Regelgeschoß
图纸 © Franz&Sue
Ansicht
图纸 © Franz&Sue
Schnitte
图纸 © Franz&Sue
Lageplan
图纸 © Franz&Sue
年份
2018
Project Status
已建造
客户
Stadtgemeinde Landeck
团队
Lucie Vencelidesová (PL), Anna Ladurner, Alexandra Flanjak, Brigitta Szakal, Bernd Stuffer, Wolfgang Fischer, Joseph Suntinger, Philipp Stromer, Philipp Wenzl, Joshua Meighörner
Statik
DI Georg Pfenniger
Bauphysik
Schöberl & Pöll GmbH
Gebäudetechnik
DI Dieter Schwaninger, HG Engineering
Landschaftsplanung
EGKK Landschaftsarchitektur
Brandschutzplanung
FSE Ruhrhofer & Schweitzer GmbH
Sportstättenbau
Ingenieurbüro Laurin Hosp
ÖBA
Rudigier & Spiss OG
Fotografie
Lukas Schaller

以下出品方的其他项目 Franz&Sue 

Bildungscampus Puntigam - Volksschule
Graz, 奥地利
Wohnhochhaus Nordbahnhof
Wien, 奥地利
Wohnbau Oberwagram
St. Pölten, 奥地利
Neubau Berliner Stadtreinigung – BSR-Zentrale
Berlin, 德国
Leitspital Region Liezen
Stainach-Pürgg, 奥地利