Ehemalige Försterschule in Bad Vöslau
Von starr zu flexibel – Neue Lehrmethoden benötigen flexible Raumkonzepte und eine multifunktionale Architektur. Teilbare Klassen, Workingstations für PädagogInnen, Begegnungszonen, Chill – und Bewegungsbereiche, Unterricht im Freien. Die Zeit der hierarchisch strukturierten Schulen, in denen sich an langen, dunklen Gängen ein Klassenzimmer an das andere reiht, sind vorbei. Genauso altmodisch war die ehemalige Försterschule, die wir in Gainfarn / Bad Vöslau vorfanden, und diese wollten wir grundlegend modernisieren.
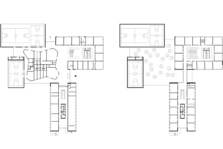
Amorph statt eckig – Wir rissen die nicht mehr brauchbaren Teile ab und sanierten den Bestand aus den Siebziger Jahren. Wir ergänzten diesen mit weiteren Trakten wie ein Windrad um die neue, zentrale Aula, fünfzig Meter lang, sechzig Meter breit. In sie stellten wir ein amorph geformtes Gebilde, denn Eckiges gab es ohnehin schon genug. Hier residieren die Bibliothek, nebst Mehrzweckraum.
In den Umkleideräumen, Duschen und Toiletten im hinteren Teil ziehen sich die SchülerInnen für den Sportunterricht um und laufen auf direktem Wege, auf gleicher Ebene, zu einem der zwei angrenzenden Turnhallen oder den Sportplätzen ins Freie.
Nebeneffekt: Durch die so zueinander gesetzten Gebäudeteile entstanden vielfältige Außenräume, Nischen und Freiflächen.
Das Gegenteil von Grau – Damit die Aula nicht nur Durchzugsort bleibt, gestalteten wir die Treppe als großes Sitzmöbel mit einem hellen Oberlicht darüber, auf dem die Jugendlichen gerne lümmeln, Hausaufgaben abschreiben, tratschen und spielen.
Die bunte „Jollystift Decke“, diagonal verlaufende Aluminiumlamellen vor schwarz gestrichenen Herakustikpanelen, ist nicht nur im wahrsten Sinne schräg, sie ist das Gegenteil von Grau und schluckt den Lärm, den viele Kinder nun einmal so produzieren. Sie taucht immer wieder in den Gebäudeteilen als verbindendes Gestaltungselement auf, sogar bis unters Vordach hinaus. Manche sagen, sie ist zum Wahrzeichen der Schule mutiert.
Licht, Transparenz und Lebendigkeit – Durchgehende Fensterbänder machen die Gänge und Räume hell und luftig. Der Bezug zum Außenraum ist damit überall vorhanden. Der Blick kann schweifen, die Gedanken sich klären und der schulfreie Nachmittag liegt visuell zumindest nah. Die Gangfenster mit Sitzlaibungen geben Blicke in und aus den Klassenzimmern frei, bringen Licht, Transparenz und Lebendigkeit. Gangschule war gestern.
Wohnzimmer im Freien – Ein Element, das wir im Bildungsbau immer gerne einsetzen, eine Dachterrasse, haben wir auf dem Flachdach der Aula platziert. Auf den runden bunten Sitzinseln, die zwischen Pflanzentrögen stehen, chillen die SchülerInnen, büffeln, lauschen dem Unterricht unter freiem Himmel oder schauen den MitschülerInnen beim Sportunterricht auf den Plätzen darunter zu.
Der ökologische Aspekt: Das gesamte Gebäude wurde nebst thermischer Sanierung auf Niedrigenerigestandard gebracht. Auf aufwendige Haustechnik haben wir verzichtet. Eine Hackschnitzelheizung nutzt Brennmaterial, das regional vorhanden ist.
- 年份
- 2014
- Project Status
- 已建造
- 客户
- Bundesimmobiliengesellschaft m.b.H.
- 团队
- Lucie Vencelidesová (PL), Anna Gruber, Michael Hasslacher, Bernd Stuffer, Joseph Suntinger, Christian Szalay, Wolfgang Fischer, Daniel Kovacs, Larissa Sandhack, Kamile Batur
- Statik
- petz zt-gmbh
- Bauphysik
- Schöberl & Pöll GmbH
- Gebäudetechnik
- BPS Engineering
- Brandschutzplanung
- FSE Ruhrhofer & Schweitzer GmbH
- ÖBA
- A Quadrat ZT GmbH







