Chemistry Lab am IST-Campus
Mit dem IST-Austria-Campus bei Klosterneuburg entsteht ein neues internationales Lern- und Forschungszentrum. Auf die hochkomplexe Bauaufgabe des Chemielaborgebäudes reagierten wir mit einem klaren und reduzierten Entwurf, der die diversen Bauformen vor Ort städtebaulich integriert und für das Ensemble eine neue Mitte mit urbanem Charakter bietet.
Das noch junge Institute of Science and Technology Austria (IST Austria) betreibt naturwissenschaftliche Grundlagenforschung und bietet eine Postgraduiertenausbildung an. Es versteht sich als führende Forschungseinrichtung für hochkarätige WissenschafterInnen aus aller Welt.
Auf dem Institutsgelände außerhalb von Klosterneuburg unweit von Wien werden bis zum Jahr 2026 Schritt für Schritt neue Gebäudeeinheiten für insgesamt 90 internationale Forschungsgruppen errichtet werden. Eines davon ist unser Gebäude LAB5 mit Forschungslabors für Chemie sowie einer Bibliothek nebst einer Gradschool.
Wir bauen weiter – Das Gelände des benachbarten, bereits bestehenden Cafés, unsere terrassierte Bibliothek und das neue Chemiegebäude wachsen zu einem großen gemeinsamen Ganzen. Statt kleinteiliger Strukturen setzen wir eine Klammer, die dem Ort Halt gibt und die anderen Architekturen integriert.
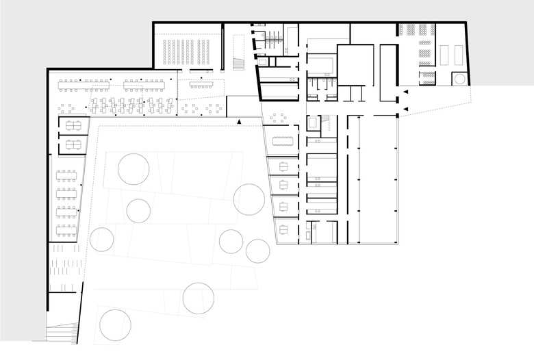
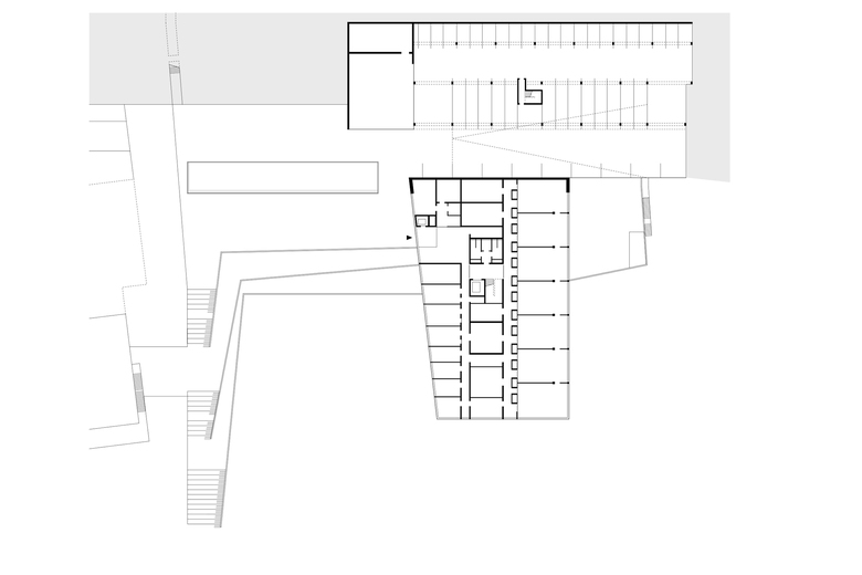
Das getreppte Gebäude folgt dem bestehenden Gelände. Die Bibliothek und die Gradschool mit der großen vorgelagerten Terrasse bilden einen attraktiven öffentlichen Raum und fassen mit einer großen Geste den Platz von drei Seiten zu einem Begegnungsort mit urbanem Charakter und zu einer identitätsstiftenden Mitte für das ganze Ensemble zusammen. Wir haben das Parkdeck in Verlängerung der Terrassen gedeckt ausgeführt, wodurch sich neue Wege und schöne Weitblicke in die grüne Umgebung ergeben.
Horizontal und vertikal – Über das verbindende »Terrassengebäude« wird der ganze Gebäudekomplex vertikal und horizontal erschlossen. Der Höhenunterschied von etwa 13 Metern zwischen dem unteren und oberen Platz wird mit Stufen überwunden, auf denen die Studierenden, Lehrenden und MitarbeiterInnen sitzen, lernen, sich treffen können. Der Aufzug im Foyer sorgt für eine barrierefreie Erschließung.
Lichte Lern- und Leselandschaft – Die Bibliothek und Graduate School erstrecken sich über drei Geschoße mit Galerien, Sichtachsen und großen Fensterbändern. Dadurch entsteht eine freundliche und großzügige zusammenhängende Lern- und Leselandschaft. Das helle zentrale Foyer an der Schnittstelle zwischen Bibliothek und dem Laborgebäude ist Kreuzungspunkt zwischen Praxis und Lehre. Die den Geschoßen vorgelagerten Terrassen bieten einen schönen Bezug zum Außenraum mit Blick in die umliegende Landschaft des Wienerwaldes.
Laborräume und Technik – Unsere Antwort auf das komplexe Raumprogramm mit seinen vielen Forschungslabors, hoch komplizierten technischen Anforderungen und Details war eine möglichst simple räumliche Lösung. Das große Chemielaborgebäude haben wir funktional und äußerst einfach gegliedert. Wunsch des Auftraggebers war es, die Räume flexibel nutzen zu können. Sämtliche Labors sind auf den Geschoßen eins bis drei übereinander angeordnet. Dadurch ist auch eine einfache Leitungsführung für jene hochtechnisierten Bereiche möglich. Die Laborbereiche sind durch ihre Orientierung Richtung Norden vor direktem Sonnenlicht geschützt und stehen mit den Nachbargebäuden, die in den nächsten Bauphasen folgen, in einem Dialog.
EU-weit, nicht offener Wettbewerb, 1. Preis, in Arge mit Maurer&Partner GmbH
- 年份
- 2021
- Project Status
- 已建造
- 客户
- Land Niederösterreich
- 团队
- Björn Haunschmid-Wakolbinger (PL), David Schiefer, Bernd Stuffer, David Huber, Philipp Wenzl, Joshua Meighörner, Anastasija Ilic, Anderas Miguel Mayer, Ajdin Vukovic
- Statik
- Woschitz Engineering ZT GmbH
- Bauphysik
- RWT Plus ZT GmbH
- Gebäudetechnik
- InPlan Ingenieure GmbH
- Landschaftsplanung
- EGKK Landschaftsarchitektur
- Brandschutzplanung
- FSE Ruhrhofer & Schweitzer GmbH
- Medizintechnik
- VAMED Standortentwicklung und Engineering GmbH
- Fotografie
- Kurt Kuball
- Fotografie
- Andreas Buchberger











