Wettbewerb „ein neues Haus für die taz“
Ausloberin:
die tageszeitung
Präsentation:
2014
ARGE mit:
czyborra klingbeil architekturwerkstatt
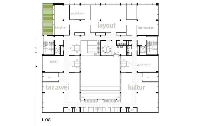
Programm:
Redaktionsgebäude, Veranstaltungsräume, Café
BGF:
7.000 qm
- 年份
- 2014
- 团队
- carpaneto.schöningh architekten, c.s architekten, silvia carpaneto, czyborra klingbeil architekturwerkstatt, cka







