Dalian International Conference Center
With the International Conference Center, the Viennese architectural studio Coop Himmelb(l)au has constructed an unmistakable landmark for the prospering harbor city of Dalian, China. Opened in 2012 and featuring a shell-shaped roof, the center hosts a multifunctional “small city within a city” with conference and event rooms for 7,000 visitors in a total area of 100,000 m².
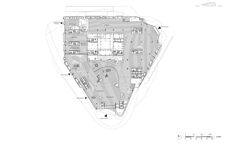
The two major urban axes converging here give rise to the building’s position and basic shape. The conference hall for 2,500 visitors and opera house with 1,800 seats lie in the center of the building beneath the shell-shaped, partially translucent roof. Small conference rooms with numerous usage options surround this core like pearls, forming an internal urban structure with squares and streets that invite visitors to linger and chat – the informal meeting spaces that are so important for conferences. Chill-out zones and catering stations are also located here. The controlled supply of daylight assists the visitors in their spatial orientation and creates a atmospheric variety on the inside. “Despite its enormous size for 7,000 people, the building is as vibrant as a city,” explains Wolf D. Prix, Design Principal and CEO of Coop Himmelb(l)au. “The entry hall has the size of four football fields and reaches up to 45 meters high. Even with this size, the building is not forbidding but rather clearly arranged and inviting.”
Form and function – It was determined from the outset that the World Economic Forum would be its main user. This Swiss foundation is mainly known for its annual meetings in Davos and annually organizes a “summer Davos” at this new site in China. The requirements for this function determined the spatial concept, the size and number of conference rooms and offices. Since the opera and conference center lie directly behind one another, the main stage can be used for the classic theater auditorium just as well as for the flexible multi-purpose hall. The opera house is based on a multifunctional design and can be used for such events as conferences, music and theater all the way to classic opera with very little effort. To make the building’s architectural concept and function visible from the outside, the conference halls penetrate the facade. They stand out against the metallic outer skin and deform it. The perforated aluminum slats of the exterior shell provide a sufficient amount of daylight and give the building its striking sculptural shape. The slats are opened in some of the public areas, offering selective views of the city and the bay of Dalian.
Design – “The building consists of two elements,” Prix explains, “the table and the roof. The opera, conference halls and access zones rest on the table-shaped steel construction, with a three-dimensional deformed façade-roof construction above it.” Both elements are steel space frames with depths ranging between five and eight meters. The whole structure is supported by fourteen vertical cores made of composite steel and concrete. The steel constructions were produced at Chinese shipyards, since these were the only facilities where the 10-cm steel plates could be welded safely and precisely. “At Coop Himmelb(l)au, we are thus putting Le Corbusier’s words into practice, when he said that buildings should be constructed like ships,” Prix says. Modern technology and construction expertise allowed for span widths of more than 85 meters and projections of more than 40 meters.
Sustainable energy concept – One of the most important tasks of sustainable architecture is minimizing the energy consumption. It is therefore essential to integrate natural environmental resources. The planners utilized Dalian’s location on the sea, along with the strong wind. More precisely, this means: The relative thermal energy of the sea water and the natural ventilation of the enormous air volumes in the building are used for the cooling in the summer and heating in the winter. Low-temperature systems are used for heating while the thermal mass of the concrete core is activated to keep the building temperature constant. The atrium beneath the roof is conceived as a solar-heated, naturally ventilated sub climatic area. A high degree of natural daylight reduces the energy consumption for artificial lighting and has a positive psychological effect. Integrated into the shape of the building, solar panels provide additional energy.
Location – Dalian is an important seaport as well as an industrial, commercial and tourist center in China’s northeastern province of Liaoning. With six million residents, the city was declared a special economic zone in 1984 and numerous foreign companies established a base there. A new district and international port for cruise ships is currently being developed on several fallow properties from former heavy industry plants and artificially filled-in grounds along Dalian’s coastline – a structural transformation that will have a great impact on the nationwide significance of the city within the next decade.
Client
Dalian Municipal People’s Government, P.R. China
Architect
Planning: Coop Himmelb(l)au – Wolf D. Prix / W. Dreibholz & Partner ZT GmbH
Design Principal: Wolf D. Prix
Project Partner: Paul Kath (2008-10), Wolfgang Reicht (2010-12)
Design Architect: Alexander Ott
Project Architect: Wolfgang Reicht
Design Team: Quirin Krumbholz, Eva Wolf, Victoria Coaloa
Project Coordination China: Lei Feng
Project Team: Nico Boyer, Jan Brosch, Jessie Chen, Yue Chen, Debora Creel, Simon Diesendruck, Pola Dietrich, Wendy Fok, Keigo Fukugaki, Francois Gandon, Alice Gong, Reinhard Hacker, Thomas Hindelang, Veronika Janovska, Moritz Keitel, Matt Kirkham, Ariane Marx, Gaspar Gonzalez Melero, Matthias Niemeyer, Reinhard Platzl,
Ian Robertson, Peter Rose, Liisi Salumaa, Anja Sorger, Giacomo Tinari, Vanessa Castro Vélez, Markus Wings, Manfred Yuen,
Modellbau: Paul Hoszowski, Nam La-Chi, Taylor Clayton, Lukas Allner, Katsyua Arai, Matthias Bornhofer, Katrin Ertle, Moritz Heimrath, Rashmi Jois, Zhu Juankang, André Nakonz, Phillip Reiner, Arihan Senocak, Sachin Thorat, Marc Werner, Silja Wiener, Olivia Wimmer, Logan Yuen, Maria Zagallo
3D Visualisierung: Isochrom.com / k18.at / Daniel Kerbler / silkroad.com
Local Partners
DADRI Dalian Institute of Architecture Design and Research Co. LTD
UD Studio, Dalian, P.R. China; J&A Interior Design, Shenzhen, P.R. China
Consulting
Structural Engineering: B+G Ingenieure, Bollinger Grohmann Schneider ZT-GmbH, Vienna, Austria; DADRI Dalian Institute of Architecture Design and Research Co. LTD, Dalian, P.R China
Acoustics: Müller-BBM, Planegg, Germany
Stage Design: BSEDI Beijing Special Engineering Design and Research Institute, Beijing, P.R. China
Lighting Design: a•g Licht, Wilfried Kramb, Bonn, Germany
Audio & Video: CRFTG Radio, Film and Television Design & Research Institute, Beijing, P.R. China
Climatic Design: Prof. Brian Cody, Berlin, Germany
General Contractor: China Construction Eight Engineering Division, Dalian, P.R. China
Chronology
Competition: 03/2008
Start of Planning: 07/2008
Start of Construction: 11/2008
Completion: 09/2012
Project data
Site Area: 40,000 m²
Footprint: 33,000 m ²
Gross Floor Area Conference Center: 91,250 m², total: 117,650 m²
Façade Area: 30,600 m², Roof area: 28,000 m²
Building Height/Length/Width: 60 m / 220 m / 200 m
Number of Floors: 8
- 年份
- 2012
- Project Status
- 已建造


















