CIPEA No.4 House
Situated in Laoshan Forest to the west of central Nanjing city, China International Practical Exhibition of Architecture (CIPEA) began in 2003 to bring twenty-four renowned international & domestic architects together onto one site. CIPEA consist of four public buildings and twenty small houses, in accordance with the brief, the houses should have at least five bedrooms, public spaces, and hospitality accommodations on 500 square meters.
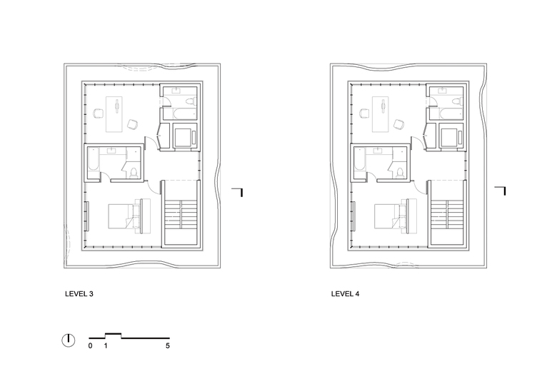
The Number Four “Blockhouse” sits on a particularly valley site, nestling the house into the landscape. In the spirit of a pagoda, four cubic floors are stacked vertically, allowing for minimal site excavation and land use. The ground floor features living and dining spaces quietly enveloped in the surrounding forest and overlooking a stream, and a communal roof terrace rises to just above the trees. The roof merges into the landscape as another living space, complete with pool and wooden deck within the panorama of the forest. The geometric shape is sculpted from concrete and finished in a white protection surface.
The concept of Blockhouse is almost the living attitude of many Chinese: a minimal opening to the surrounding landscape is the only perforation of the richness inside the house. The horizontal break of each floor—in combination with larger unique curved apertures on each floor—frame vistas in the spirit of Chinese landscape scrolls. Prescribed views have a long tradition in Chinese art history and traditional Chinese gardens, designed to make the viewer reconsider and contemplate the landscape.
- 年份
- 2012
- 团队
- Zhang Lei, Jeffrey Cheng, Wang Wang, Wang Yi
- Construction drawing design
- ADI-NJU
















