A-NOBIS Szigeti Sektkellerei
Die neue Sektkellerei von Norbert Szigeti, einem der Pioniere für erlesenen Sekt aus Österreich, wird nicht nur Produktionsstätte sein, sondern repräsentative Architektur in der Hochwertiges geboten wird sowie ein Treffpunkt und Ort des Genusses.
Ein neuer Tempel für Genuss
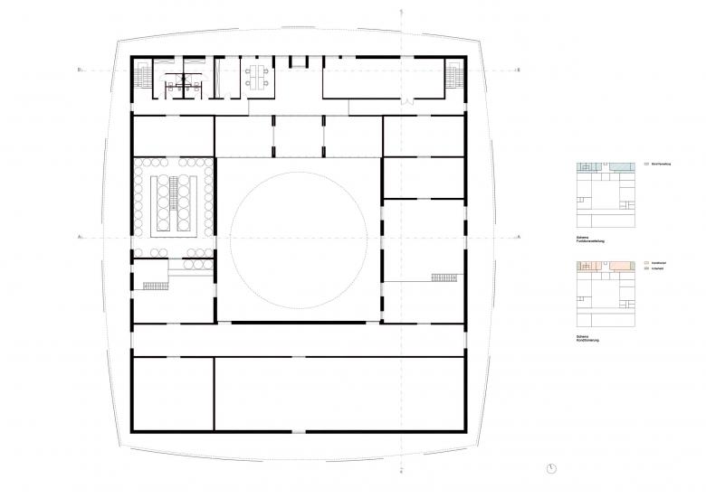
Das quadratische Bauwerk liegt selbstbewusst, aber zurückhaltend, in der parkartigen Landschaft im burgenländischen Zurndorf und führt regionale Einflüsse und zeitgenössische Baukunst zusammen. Der ruhige Massivbau wird von einem auskragenden Holzdach durch Regen und Sonne geschützt und von einem schleierartigen Metallgewebe, in dem sich die Perlage des Sekts widerspiegelt, umhüllt. Der leicht geschwungene Rundgang zwischen massiver Wand und durchlässigem Schleier dient dazu, die Sinne zu schärfen und sich auf den Genuss und das Abenteuer einzulassen. Im Inneren des Bauwerks liegt die Oase der Ruhe: Ein quadratischer Hof mit regionalen Steppengräsern, Sträuchern und Bäumen und einem kreisförmigen Vordach, das sich zum Himmel hin öffnet. Das Gebäude ist als gläserne Produktion konzipiert, in der die einzelnen Stationen der traditionellen Flaschengärung, wie sie in der Champagne bekannt sind, vom Besucher durchschritten werden.
- 年份
- 2020









