Feuerwehr Wien Landstraße
Harte Schale, weicher Kern: Ein selbstbewußt ausgeformter Baukörper aus Sichtbeton mit präzise gesetzten Öffnungen mitten in der heterogenen Industriezone direkt neben der Autobahn.
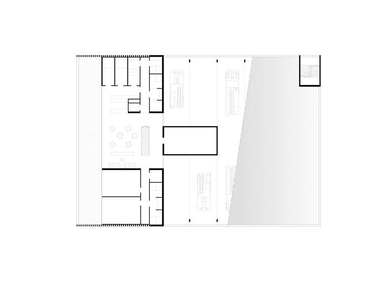
Alles unter einem Dach. Eine klare Organisation kann Leben retten! Im EG befinden sich die Büros. Von den Ruhebereichen im 1. OG und den Aufenthaltsräumen mit der Terrasse im 2. OG gelangt man über zwei Schleusen auf kürzestem Weg zu der Halle mit den Einsatzfahrzeugen.
Leichte Orientierung: Die Halle mit den Feuerwehrautos kann man vom zentralen Stiegenhaus stets latent einsehen.
Projektdetails
Auftragsart: Offener, einstufiger Realisierungswettbewerb im Oberschwellenbereich
Auszeichnungen: Anerkennung
Auftraggeber: Stadt Wien
Ort: Wien, AT
Wettbewerb: 2018
BGF: 2501 m2
Energieeffizienz: Passivhausstandard
Mitarbeiter: Slavomir Peterka, Michael Salvi, Andres Schenker, Veronika Ševčíková, Thomas Weber
Kooperation
Statik: Gmeiner Haferl Bauingenieure
Bauphysik: IBO – Österreichisches Institut für Bauen und Ökologie
Gebäudetechnik: Teamgmi Haustechnik
Brandschutz: IMS Brandschutz
Visualisierungen: Janusch
- Cliente
- Stadt Wien
- Equipa
- Slavomir Peterka, Michael Salvi, Andres Schenker, Veronika Ševčíková, Thomas Weber




