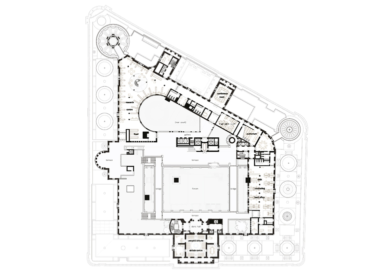
The Bank of England: a dialectical project
Critically inspired by John Soane’s legendary ‘ruin-esque’ Bank of England, the project explicitly engages the architectural dialectics of ruin and construction, interiority and exteriority with those of genuine publicity and institutional power.
Two of the oldest and most distinctive phenomena of civilization, architecture and money are each fundamentally dialectical, i.e. constituted by and developed through internal oppositions. This project for a transformation of the British Central Bank aims to architecturally signal a potential historic monetary reform whereby money would finally become what it ever promised to be: the public(‘s) equity through which all share in the common enterprise of the national economy.
In the Tower of Babel, at the point where it simultaneously builds up and breaks down, we find architecture’s core dialectics to be divided over its existential stages of construction and ruination, the one upward-striving and determinately unifying, the other on the contrary horizontalising and giving way to a plurality of interpretation. Soane’s enigmatic 1830 depiction of his finalized Bank of England as ‘ruin under construction’ forms the testimony of his structurally innovative yet deeply ruin-inspired architecture. Made in the wake of the first modern financial crisis however, the painting should also be read as an allegory for the cyclic self-destructivity of the modern ‘financio-monetary’ commercial banking system, which’ upholding has been the central bank’s calling ever since. Following the crisis of 2008 and the recent rise of crypto-currencies, it is now that the Bank of England has begun to consider what may at first seem an insignificant detail but truly implies the fundamental reform of the institution of money and thus of the economy it mediates: as central bank, to issue ‘digital cash’ as debt-free alternative for bank credit (i.e. electronic money), thus fulfilling its historic dialectic (private banker to the state > public banker to the banking sector) by opening itself up as the public bank for the whole society. After the historical example of Charles De Wailly’s 1795 revolutionary project for the conversion of the Parisian Church of St. Genevieve into the French Panthéon, this project for the Bank aims to architecturally arrest the moment of reform in its full historic significance through an instantaneous confrontation of the new with the old, whereby the former gets historically inscribed as the latter is redeemed for the future, while through the building’s lasting present the whole emerges as dialectic unity. Beyond a pure moment for the collective imagination, as a public complex the transformed Bank thus promises to become the architectural embodiment of the future monetary and economic order, as well as a profound site for urban life.





