Weggishof
The project Weggishof emerged as the winning project of a two-phase study for a mixed residential area in Weggis on Lake Lucerne. Weggis is fortunate to be orientated south, facing the lake. The view from the plot is however obstructed by a large hotel building complex.
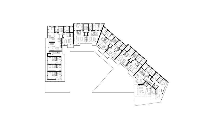
The U-shaped building is embedded into the slope. The courtyard opens up the apartments and doubles as a common outdoor and playground space, creating a new centre for the surrounding area. The terraced courtyard, which is formed by the natural terrain, extends to the ground floor of the residential units. The ground floor is thus expressed through variations in level in consonance with the surrounding landscape, whereas the upper floors consist of single-story dwelling types.
The terraced structure consists of 40 residential units of various types, a police station, a child care centre as well as commercially viable areas. The scope of apartment types range from basic studio apartments to upscale 4.5 room apartments with terraces. All units look out in two directions and have a spacious balcony.
The residential complex is designed as a prefabricated wood element construction with exposed wood surfaces. The concrete base and concrete cores of the staircase are the foundation and the bracing element. The encircling balconies facing the courtyard are a concrete and steel structure, which work as an external curtain element providing sun and rain protection to the large glazed areas of the spacious living rooms.
Program
Housing, Commercial
Design and Construction:
2014 –
Resource:
Competition, 1st Prize
Team:
HHF + Topotek 1 + Makiol + Wiederkehr HTL/SISH
Team HHF:
HERLACH HARTMANN FROMMENWILER
with Ivana Barišić, David Gregori y Ribes, Katharina Volgger and Benjamin Krüger, Zdeněk Liška, Benedikt Pienkoss, Mariana Santana, Sabrina Wolf
Building Footprint Area:
2'540 m²
Surrounding Site Improvements Area:
5'663 m²
Gross Floor Area:
7'000 m²
Useable Floor Area:
5'680 m²
Building Volume:
23'900 m³
Client:
Einfache Gesellschaft Amrein-Tellenbach-Widmer
- Ano
- 2014 –
- Project Status
- Design








