House S
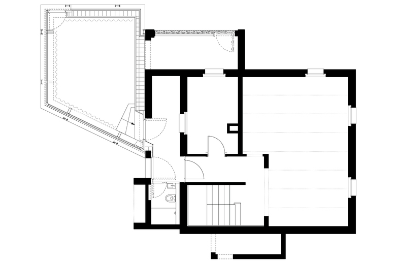
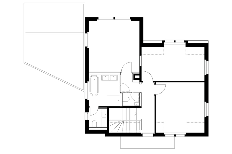
The new garden pavilion completes the historic renovation of a small villa built by the important Swiss architect Hans Bernoulli. The new structure is slightly sunken into the garden, offers a large terrace and a music room and builds a strong contrast to the beautiful house built in the early 1900’s.
Program:
Renovation of a private house and construction of a garden pavilion
Design and Construction:
2014 – 2017
Team:
HERLACH HARTMANN FROMMENWILER
with Markus Leixner and Benjamin Krüger
Client:
Private
- Ano
- 2017
- Project Status
- Built







