Aux Entrepôts
HHF has won an invited competition to build 70 dwelling units along with studios and retail space in Renens in the Lausanne West region. The client is the Swiss Federal Railways (SBB). The property formerly served as storage facilities for SBB, not far from the Renens station, which is a hub of activity for the students of adjacent universities. By 2020 the site is to be developed into the new “Entrepôts” quarter, according to a master plan from KCAP.
Program:
Mixed-Use: Housing and Commercial
Design and Construction:
2016 –
Competition:
1st Prize, 2016
Team:
HERLACH HARTMANN FROMMENWILER
with Adrian von Kaenel and Eun A. Song, Nadja Uzelac, Monika Wozniak
Gross Floor Area:
5'853 m2
Building Volume:
29'465 m3
Client:
SBB Immobilien
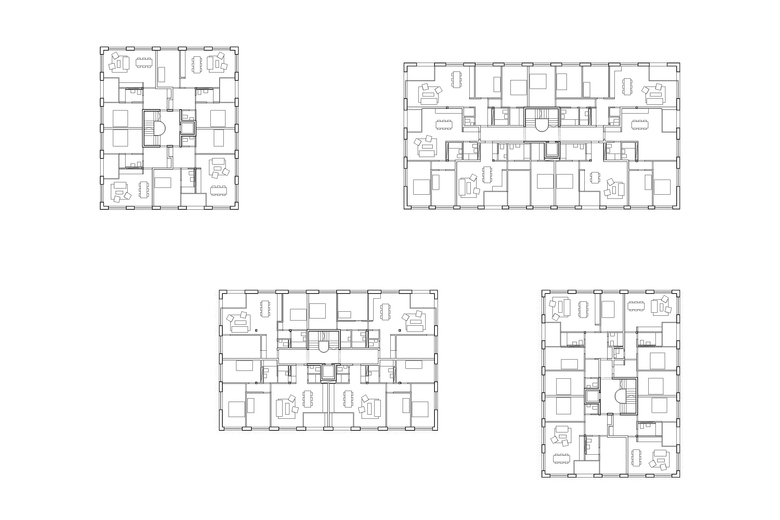
A special feature of the concept is the mix of different housing types and standards, from mini-lofts designed for flexible use to family apartments to penthouse units. Facilities for the general public are teamed with the mini-lofts, which are modeled on Dutch examples, to enliven the ground floor of the urban building ensemble: deep apartments with exceptional ceiling heights each combine a studio or workshop space with a living area, thus making them ideal for artists, students, or young entrepreneurs who can open their first office here.
Above these are three levels of dwelling units of average standard, each with a recessed loggia. The cross-shaped penthouse apartments atop each of the apartment buildings form private roof terraces. The resulting subtracted building corners of the penthouse levels give a distinctive appearance to the four buildings proposed by HHF.
The buildings, each constructed on a rectangular plan, vary in their alignment and color. All four are built with an insulating brick facade. Depending on the color of their glazed surface, the directly affixed bricks shimmer green, yellow, blue, or red. The ruggedness and simplicity of the chosen material – together with the emphatically horizontal, narrow window frames – are evocative of the site’s history, with its former industrial use.
- Ano
- 2016 –
- Project Status
- Under Construction






