The Rijksmuseum
Rehabilitación y adaptación
El edificio del Rijksmuseum de Ámsterdam fue proyectado a finales del XIX por el arquitecto holandés Pieter Cuypers. El programa del edificio era doble, de una parte museo nacional, de otra, puerta de entrada hacia el sur de Ámsterdam.
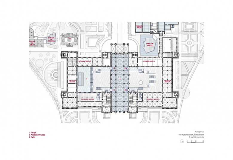
El uso museístico ha tenido que pagar un precio extraordinariamente alto por el papel urbano del edificio como elemento de conexión entre la entonces ciudad existente –al norte- y los nuevos desarrollos hacia el sur. Un pasaje, prácticamente
una calle, atraviesa el edificio de norte a sur dividiéndolo en dos partes, obligando al museo a tener dos entradas – ambas hacia el norte- y dos escaleras principales, y ocasionando que sólo en planta principal se encuentren conectadas las zonas este y oeste en que el edificio queda dividido por el pasaje en sus dos plantas inferiores.
Sobre el edificio, además, se había intervenido en múltiples ocasiones a lo largo del pasado siglo: las necesidades de espacio expositivo habían llevado a edificar en los patios del edificio original, lo que había provocado una carencia total de luz natural y convertido el recorrido del museo en una experiencia laberíntica en la que el visitante carecía de cualquier dato sobre su posición en el edificio.
En resumen, el museo presentaba las carencias habituales de los museos alojados en edificios antiguos frente al aumento constante del numero de visitantes, es decir, la falta de un hall de dimensiones adecuadas y de todos aquellos otros servicios hoy imprescindibles, como áreas de información, tienda, cafetería, auditorio etc. Y a ello se unía una total desfiguración de sus espacios originales, tanto en patios como en las propias galerías.
La intervención sobre el edificio consistía, por un lado, en abrir una nueva y única entrada al museo ocupando para ello la nave central del pasaje y por otro, en liberar los patios y los espacios expositivos, recuperando hasta cierto punto su estado original o al menos sus dimensiones.
Si bien el primero de los propósitos no pudo ser llevado a término al tropezar con la radical oposición de las asociaciones de ciclistas, sí se ha llegado a generar un gran hall central al unir los patios este y oeste del edificio bajo el pasaje. El gran espacio que se genera al abrir y conectar los patios alberga todos los usos imprescindibles para recibir a los visitantes, y constituye un digno espacio a la escala que la grandiosidad del edificio merece. Desde el pasaje se accede a este hall y desde él, se inician los recorridos hacia las zonas expositivas, enlazando con las grandes escaleras originales.
En el nuevo espacio creado, se ha empleado la piedra caliza como material fundamental, una piedra de un tipo no presente en otras zonas del edificio, pero que sin embargo, permite unir lo nuevo y lo antiguo sin demasiada complacencia en la yuxtaposición o el contraste. Este mismo material ha sido empleado en las dos pequeñas intervenciones de nueva planta que se ejecutan en el jardín. Los patios, con suelo levemente inclinado se conectan bajo el pasaje, y sobre cada uno de ellos se ha suspendido una estructura con misiones acústicas y de iluminación, los “chandeliers”.
- Ano
- 2013







































