Crossboundaries' Office
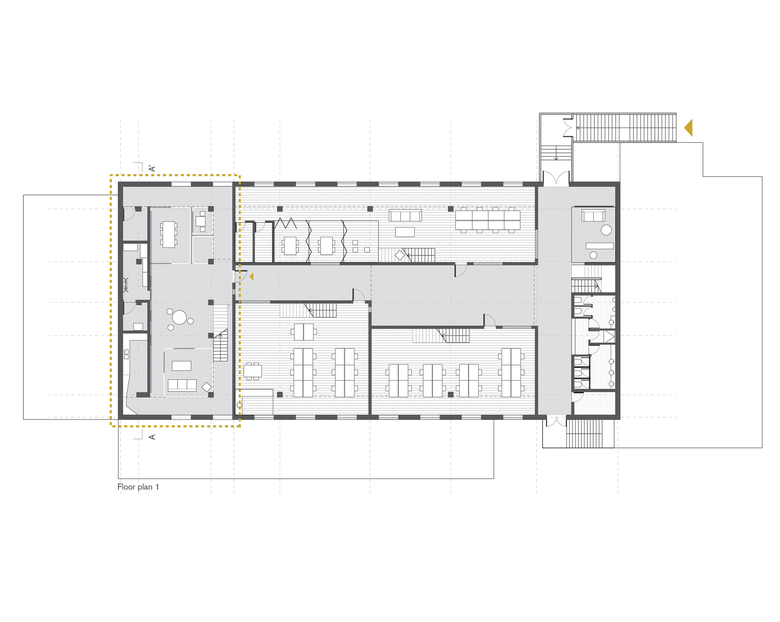
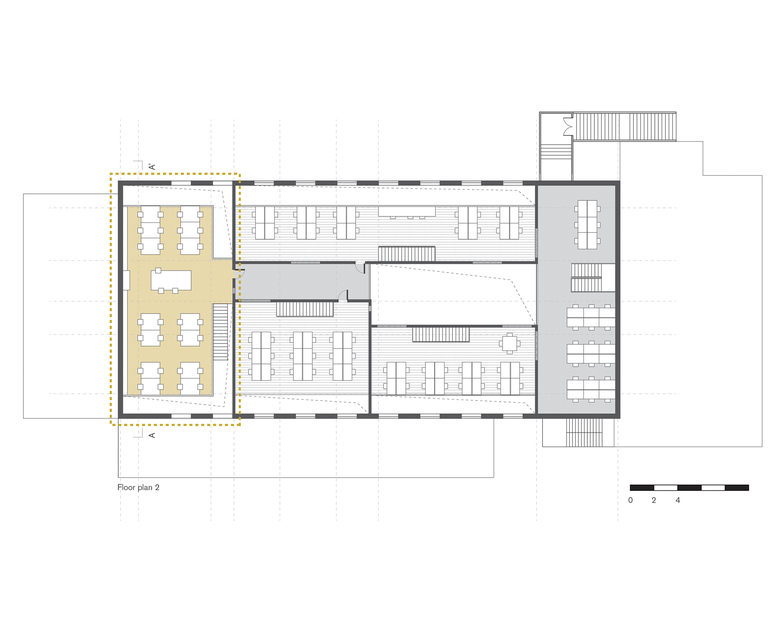
A former auditorium is transformed into lofty contemporary workspaces. Centered around an atrium,windows open into four offices spaces, extending the sense of the open floor plan. Insidemezzanine floors form voids with the original outer walls for circulation, air and light filtering from the skylights.
RESPECTING THE EXISTING WHILE INTRODUCING THE NEW
Crossboundaries occupies one of the four created offices. The office is sitting under a new roof, evenly scattered with skylights, raised to allow space for a mezzanine level in the newprogram. The existing walls left bare, expose its past and new transformation, revealinga glimpse of the building's history hailing from the 50s.
Inside Crossboundaries office, the principal floor is an open meeting area. A service stripewith a pantry, storage room and a small meeting roomruns parallel across the back of the office layered with movable pin boards. Above, the mezzanine is for working, the service stripe is here accommodating the material and reference library.
- Ano
- 2015
- Cliente
- Private
- Equipa
- Binke Lenhardt, DONG Hao, Irene Solà









