New Administrative Center

Verhoevenlei 11, Brasschaat, Bélgica
Photo © Tim Van De Velde

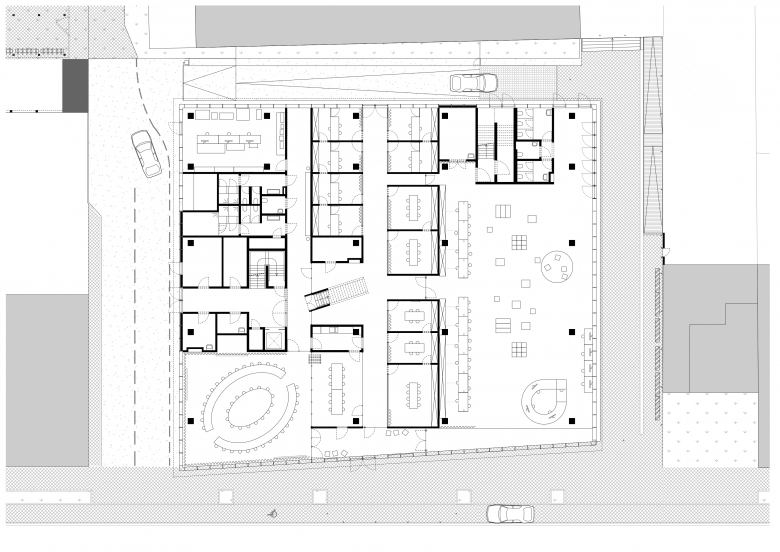
To design an Administrative Centre mainly entails the design of relations – formal and distant relations (e.g. civilian-government, policymakers-personnel), as well as profound, emotional ones (e.g. between colleagues or civilians).

Rather than being a formal building, this project wishes to be an organizational form, facilitating and catering to these relations. To do so, the onset of the design consists of three complementary spatial concepts with corresponding intimacy level: the room, the platform and the forum.

The different programmatic elements add up to a spatial conglomerate: the generic form of the New Administrative Centre. This generic “mass” is then manipulated to fit into its surrounding urban conditions. The inevitability of its anomalous character within this predominantly residential quarter led to the creation of a firmly edged, autonomous and recognisable building.

Photo © Tim Van De Velde
Photo © Tim Van De Velde
Photo © Tim Van De Velde
Photo © Tim Van De Velde
Photo © Tim Van De Velde
Photo © Tim Van De Velde
Photo © Tim Van De Velde
Photo © Tim Van De Velde
Photo © Tim Van De Velde
Drawing © Compagnie O. Architects
Drawing © Compagnie O. Architects
Drawing © Compagnie O. Architects
Drawing © Compagnie O. Architects
Drawing © Compagnie O. Architects
Drawing © Compagnie O. Architects
Ano
2018
Project Status
Built

Outros projetos por Compagnie O. Architects 

House Destelbergen
Destelbergen, Bélgica
Art Academy Heist-op-den-Berg
Heist-op-den-Berg, Bélgica
Bauhaus Museum Dessau
Dessau-Roßlau, Alemanha
Holmsheidi Womens Prison
Reykjavik, Iceland
Polyvalent Pavilion Brasschaat
Brasschaat, Bélgica