House Machelen
Deze woning wordt gebouwd op een site die niet aan een straat ligt.
Een uitzonderlijke situatie; niet enkel zijn er amper rechtstreekse buren, en het bouwen is nauwelijks onderhevig aan allerlei regels.
Hoe ontwerp je een woning die het maximale uit deze omgeving haalt?
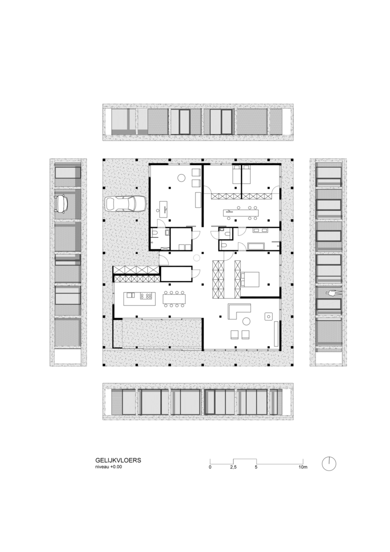
Dit leidde tot de eerder landschappelijke basisvisie van een "plan libre": een woning die zich inpast tussen een vloer en een dakplaat gescheiden door een kolommengrid.
Deze structuur maakt dat alle invullingen (wanden/ramen/etc..) "vrij" zijn, dus niet dragend.
Het laat toe een zeer open woning te creëren waar ruimtes in elkaar overlopen en op die manier binnenin fascinerende doorzichten ontstaan.
De woning als mini-‐(interieur)landschap op zich.
De gevels kunnen als rechtstreekse afgeleide van de achterliggende functies ontworpen worden en zich maximaal naar het omliggende landschap richten.
Er zijn dan ook geen echte voor-‐ of achtergevels, de woning richt zich naar de 4 zijden op 4 manieren.
- Ano
- 2016









