Brandweerkazerne Puurs
“De nieuwe kazerne voor het vrijwilligerkorps van Puurs staat als de poortwachter van de stad langs de N16. Haar toren – een droogtoren voor de brandslangen én lichtgevend billboard voor het korps en de gemeente – troont potig boven het talud van de nabijgelegen brug. De brandweerkazerne zegt niet zomaar: ‘Hier waken wij over u’. Neen, de brandweerkazerne schreeuwt met een Las Vegas-taaltje, zoals op de nabijgelegen A12, haar boodschap uit van dienstbaarheid en efficiëntie.”*
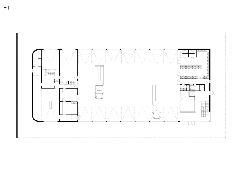
De kazerne lijkt nu wel vrolijk maatwerk voor de prijs van een prêt-à-porteetje. Nochtans startte het ontwerp resoluut vanuit de pure functionaliteit van het programma: De kazerne als een “machine à travailler”.
In zekere zin valt deze manier van ontwerpen eerder onder de term productontwikkeling dan wel architectuur.
De finaliteit is strak, haast koelbloedig met in het epicentrum de grote remise waarop het secretariaat, de werk-, fitness- en leefruimte uitkijken. Deze grote buikruimte betrekt de verschillende onderdelen van de kazerne in één geheel. Het transformeert het in wezen extreem technische gebouw tot een ruimte voor gemeenschapsleven. De kazerne werkt als een humane biotoop. dus toch meer dan het machinale.
* Koen Van Synghel / De Standaard - 28 januari 2012
- Ano
- 2011












