Basisschool

Brusselsesteenweg 43, 9280 Lebbeke, Bélgica
Photo © Tim Van De Velde

Dit ontwerp is het resultaat van een loepzuivere projectdefinitie van een opdrachtgever-met-visie: Lebbeke wil een school niet enkel voor 2012 maar voor 2050. Een gebouw met "een hart". Een ding dat pedagogisch meegroeit.

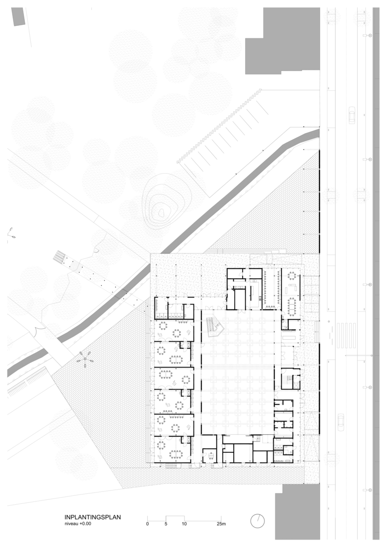
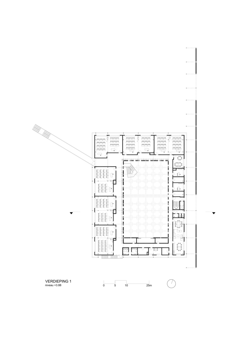
Het antwoord op deze vraag is het ontwerp van een intelligente structuur: een verzameling van verschillende stalen grid's (kolommen & balken) die zich lenen tot specifieke invulling.

Waar de structuur het ijlst is, waar ze bijgevolg de grootste overkragingen heeft, daar zit het hart, de open ruimte, de buik van de gemeenschap. Deze grote atriumruimte wordt omkranst met gelijkaardige stalen grid's die andere ritmes en densiteiten aannemen: daar waar de klassen worden voorzien, is het grid basaal acht bij acht meter. Tegen de straatkant aan wordt het fijner waardoor het geschikt is om bijfuncties in onder te brengen. Deze functies bufferen de straat, zetten zich op een wig tussen het dorp en de interne schoolgemeenschap.

De structuur wordt op 5 meter van de rooilijn geplaatst. Om RUP-conform te blijven, zetten we op de rooilijn de gevraagde witte gevel. Tussen gevel en structuur ontstaat een open ruimte die als buffer dient om kinderen en leraars op te vangen. We noemen deze ruimte de vestibule: Het is een autovrije zone voor wachten en toekomen, spelen en observeren, een ouderruimte, een zone waar je een kijk op de werking van de school krijgt.

Photo © Tim Van De Velde
Photo © Tim Van De Velde
Photo © Tim Van De Velde
Photo © Tim Van De Velde
Photo © Tim Van De Velde
Photo © Tim Van De Velde
Photo © Tim Van De Velde
Drawing © Compagnie O. Architects
© Tim Van De Velde
Drawing © Compagnie O. Architects
Ano
2017

Outros projetos por Compagnie O. Architects 

Polyvalent Pavilion Brasschaat
Brasschaat, Bélgica
Elementary School Melle
Melle, Bélgica
Post Nuclear Necropolis Doel
Doel, Bélgica
Safety Pavilion Knokke
Knokke-Heist, Bélgica
Cemetery Pavilions Brasschaat
Brasschaat, Bélgica