Primarschulzentrum Laufen
Das Schulareal liegt auf einer Hangstufe des Herzogsmätteli gegenüber dem Stadttor des mittelalterlichen Stadtkerns von Laufen. Auf dieser schmalen Freifläche reihen sich die bestehenden Schulhäuser parallel zum Hang auf. Der Neubau erweitert dieses heterogene Ensemble und schliesst es nach Osten hin ab. Mit seinem Mehrzwecksaal dient er neben der Schulnutzung zugleich als öffentliches Gebäude. Kern der städtebaulichen Idee war es, auf dem Schulareal einen für die Bevölkerung nutzbaren öffentlichen Stadtplatz zu schaffen, der über den Pausenplatz hinaus in der abgesenkten Mehrzweckhalle seine räumliche Fortsetzung findet. Das Schulareal erhielt dadurch eine Aufwertung zu einem wichtigen Begegnungsraum für die Gemeinde.
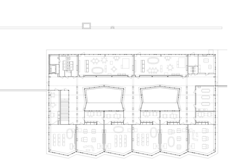
Die Schule verbindet sich mit ihren Höfen und Aussenbezügen mit dem Grünraum und den Gärten der Umgebung. Der Neubau versteht sich dabei als eine über den Turnhallensockel gelegte Pavillonstruktur: Das auf einen Fachwerkträger und zwei Schrägstützenachsen aufgelegte, als Faltwerk ausgebildete Dach gliedert das Obergeschoss und dient als Tragwerk für die abgehängten Zwischenauflager der Geschossdecken. Dies ermöglicht die effiziente Überbrückung der grossen Spannweite der Doppelturnhalle ohne zusätzliche Unterzüge.
Die kleinteilige Gliederung des Faltdachs wie auch der Fassade gibt dem relativ grossen Baukörper die Massstäblichkeit der Umgebung und lässt im Innenraum eine einzigartige Dachlandschaft entstehen. Der gestockte Jurakalkbeton und das Jurakalkbrüstungsband im Obergeschoss spiegeln die Geschichte des Orts als Steinbruch wider und gliedern den Neubau in die Reihe der Bestandsbauten ein.
Zweistufiger Wettbewerb 2007, 1. Preis
Ausführung
2009—2013
- Ano
- 2013
- Project Status
- Built
- Cliente
- Stadt Laufen









