Hafenschule Offenbach
Vierzügige Grundschule und achtgruppige Kindertagesstätte mit zwei Sporthallen
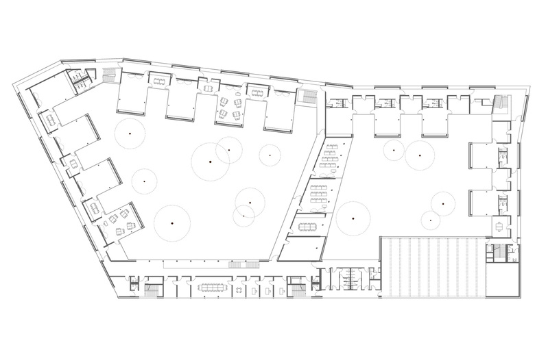
Wie ein Schutzgürtel umschließen Grundschule, Kindergarten und Sporthalle einen großen Hof, der als grüne Mitte das Herz der beiden Einrichtungen bildet und als Spiel- und Lernbereich genutzt wird. Der 5-geschossige Fachklassentrakt und die übereinander angeordneten Sporthallen bilden eine kraftvolle Raumkante zum Nordring. Zum Innenhof entsteht aus den wechselnden Nutzungsbereichen eine feingliedrige Struktur mit einzelnen, sehr gut ablesbaren Klassenhäusern. Die Räume der Krippe sind ebenerdig zum Innenhof im Erdgeschoss, die Räume des Kindergartens im 1. Obergeschoss angeordnet.
- Jaar
- 2017
- Project Status
- Built
- Klant
- Stadt Offenbach
- Wettbewerb
- 2011 - 1. Preis
- Auszeichnung
- 2018, BDA Hessen, Martin Elsaesser-Plakette
- Nominierung und Shortlist
- 2019, DAM Preis für Architektur in Deutschland
- Nominierung
- 2019, Architekturpreis Farbe Struktur Oberfläche















