Gemeindehaus Petersgemeinde Frankfurt
Das bestehende Gemeindehaus der evangelischen Petersgemeinde im Frankfurter Nordend ist abgängig. Der Neubau vermittelt zwischen der denkmalgeschützten Epiphaniaskirche im Süden und der nördlich angrenzenden Gründerzeitbebauung.
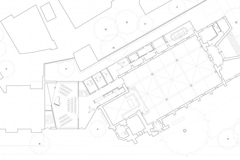
Ein eingeschossiger Bau schließt an die Kirche und umfasst das östliche Seitenschiff. Aus dem Flachbau entwickelt sich ein viergeschossiger Baukörper, welcher die Höhen und Dachneigungen der nördlich angrenzenden Wohnbebauung aufnimmt. Straßenseitig überformt ein zwerchhausartiger Giebel die Schrägen in ein Flachdach. Nach Süden bilden zwei prägnante, unterschiedlich ausgeformte Eckloggien, einen angemessenen Abschluss als Gegenüber der Kirche.
Das Foyer verknüpft die Kirche mit dem überhöhten Gemeindesaal, der sich über ein großes Schaufenster in den Straßenraum öffnet. In den drei darüber liegenden Geschossen befinden sich 4 Wohnungen, welche durch unterschiedlich orientierte Freisitze charakterisiert werden.
Architektenauswahlverfahren – 2017 – 1. Preis
- Jaar
- 2017 - 2022
- Project Status
- Under Construction
- Klant
- Evangelischer Regionalverband Frankfurt am Main




