Bildungscampus Luise Büchner - Lincoln-Siedlung

Einsteinstraße 3, 64285 Darmstadt, Duitsland
Photo © Brigida González, Stuttgart

Schule und Kindertagesstätte sind zu einem Baukörper zusammengefügt, jedoch auch eigenständig ablesbar. Durch die ebenengleiche Anordnung aller Klassen wird der Austausch der Schüler zwischen den Jahrgangsstufen und so das Lernen von- und miteinander gefördert. Die Klassenräume öffnen sich zu den pädagogisch vielfältig nutzbaren, räumlich differenzierten Lernzonen. So entstehen unterschiedliche Bereiche, die selbstorganisierten, offenen wie auch abgeschlossenen Wissenserwerb, Lernen und Arbeiten alleine oder in der Gruppe ermöglicht. Die Gruppenräume der Kindertagesstätte sind L-förmig um zwei Lichthöfe angeordnet und zu den zugehörigen vorgelagerten Freiräumen orientiert.

BDA Hessen, Joseph-Maria-Olbrich Plakette – 2023 – Auszeichnung
Vorbildliche Bauten in Hessen – 2023 – Shortlist

Photo © Brigida González, Stuttgart
Photo © Brigida González, Stuttgart
Photo © Brigida González, Stuttgart
Photo © Brigida González, Stuttgart
Photo © Brigida González, Stuttgart
Photo © Brigida González, Stuttgart
Photo © Brigida González, Stuttgart
Photo © Brigida González, Stuttgart
Photo © Brigida González, Stuttgart
Photo © Brigida González, Stuttgart
Photo © Brigida González, Stuttgart
Photo © Brigida González, Stuttgart
Photo © Brigida González, Stuttgart
Photo © Brigida González, Stuttgart
Photo © Brigida González, Stuttgart
Lageplan
Drawing © Waechter + Waechter Architekten BDA, Darmstadt
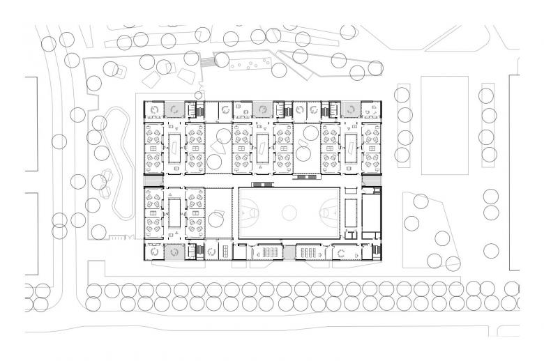
Grundriss Erdgeschoss
Drawing © Waechter + Waechter Architekten BDA, Darmstadt
Grundriss Obergeschoss
Drawing © Waechter + Waechter Architekten BDA, Darmstadt
Schnitt quer
Drawing © Grundriss Erdgeschoss
Schnitt längs
Drawing © Grundriss Erdgeschoss
Jaar
2021
Klant
Wissenschaftsstadt Darmstadt
Wettbewerb
2016 - 1. Preis

Andere projecten van Waechter + Waechter Architekten 

Sanierung und Aufstockung Herderschule
Darmstadt, Duitsland
AFZ Assessment- und Förderzentrum Neuwied
Neuwied-Engers, Duitsland
AIZ ‐ Akademie der Deutschen Gesellschaft für Internationale Zusammenarbeit (GIZ) am Campus Kottenforst
Bonn, Duitsland
Internat Berufsbildungswerk Josefsheim
Olsberg, Duitsland
Haus im Burggarten – Wohnpflegeheim
Breitenbach am Herzberg, Duitsland