Bungalow 2nd Floor
Weiche Welt für harte Männer
Innenausbau des 2.OG für den Stuttgarter Herrenausstatter „Bungalow“ - Sehr hochwertige Herrenmode in einer Hinterhofgasse zu verkaufen, erscheint widersprüchlich.
Grenzt dieser Hinterhof jedoch direkt an die wichtigsten Adressen der Innenstadt, kann gerade dessen Atmosphäre den Unterschied ausmachen.
Ein behutsamer Eingriff
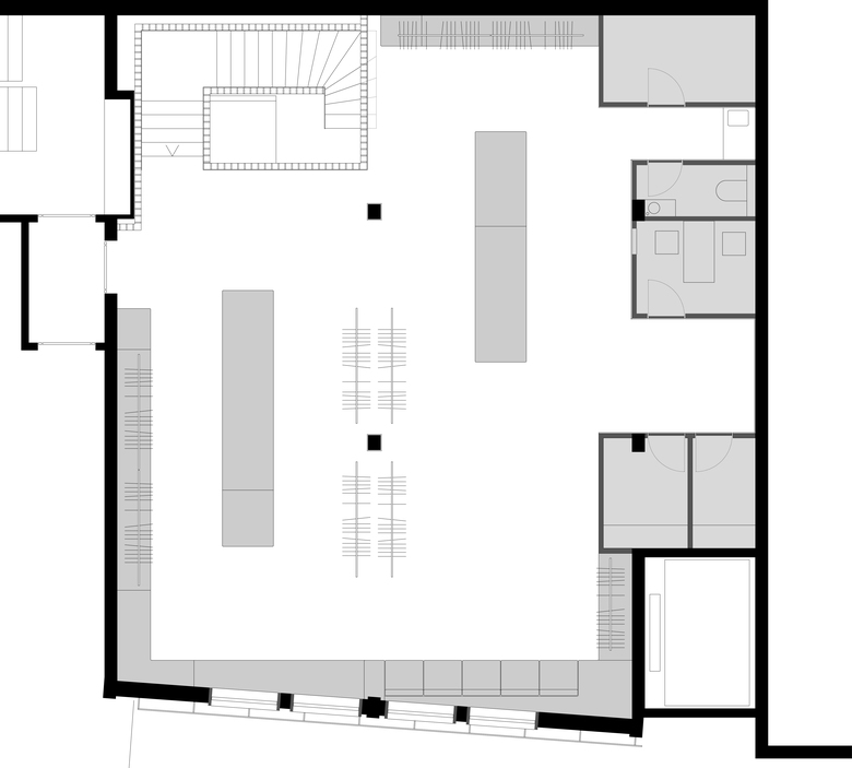
In unmittelbarer Nähe zum Marktplatz entstand in einer Seitengasse der neue Showroom für einen der exklusivsten Herrenausstatter Stuttgarts. Die abgegriffene Gebrauchsarchitektur eines ehemaligen Versandlagers bildet die räumliche Grundlage. Sie wird durch ein scharf geschnittenes, sich durch den Raum faltendes Band, das sämtliche Funktionen wie Kasse, Umkleiden und Abstellräume aufnimmt und durch die gold glänzenden Warenträger kontrastiert. Luxuriöse Designermode wird in einem ungewohnt rohen Umfeld präsentiert, ohne die Atmosphäre des Exklusiven vermissen zu lassen, die durch außergewöhnliche Möbelklassiker unterstützt wird. Außen setzt sich die direkte Konfrontation von Alt und Neu fort: ein goldenes Gewebe überspannt wie eine textile Bekleidung die alte, unveränderte Fassade.
Zitat:
„Es geht nicht darum, das Alte zu verstecken, sondern es mit dem Neuen zu überlagern, mehrere Schichten sichtbar zu belassen, manche sehr direkt, andere eher subtil, verfremdet.“
Eine Frage der Kombination
Der Kontrast zwischen Alt und Neu, zwischen der abgegriffenen Gebrauchsarchitektur eines ehemaligen Versandlagers und den Bedürfnissen eines progressiven Herrenausstatters prägen das Grundkonzept. Wie in der Mode treffen Elemente verschiedener Wertigkeit aufeinander.
- Jaar
- 2008





