Zwicky Süd

Dübendorf, Zwitserland
Photo © Andrea Helbling, Arazebra, Zürich

Das Zwickyareal wandelt sich vom Areal zum Quartier. Hier entstehen Bauten mit unterschiedlichen Nutzungsmöglichkeiten: für Büros, fürs Gewerbe oder fürs Wohnen. Schlank und luftig, gross und bullig, oder vielleicht auch flach und weit? Ausgehend von solchen fundamentalen, körperlichen Eigenschaften haben wir drei Archetypen ausgewählt: die schlanke Scheibe, der massive Block, die flache Halle.

Kein Industrieareal ohne Hallen: Sie bieten grosse Erdgeschossflächen, wo produziert, gelagert, ausgestellt und verkauft wird. Sie lassen sich aber auch bewohnen. Schmale, lange Hofhäuser verbinden den Charme eines Reihenhauses mit der Flexibilität von urbanen Lofts.

Die schlanken Scheiben mit ihren langgezogenen Terrassen und Laubengängen gleichen einem Hotel.  Sie sind hochinstalliert und fein unterteilbar: Locandazimmer, Zweizimmerwohnungen, Ateliers oder Familienmaisonetten sind hier mühelos organisierbar.

Die fetten Blocks mit ihren inneren Gärten sind vom Bürobau her vertraut. Effizient und flexibel können sie eine Schule, einen Cluster von KMUs aber auch diverse Wohntypologien beherbergen. Balkone werden aussen angehängt oder reichen vom Austritt bis zur Brückenterrasse, welche zum benachbarten Gebäude hinüberspannt.

Visualization © Schneider Studer Primas Architekten GmbH
Photo © Schneider Studer Primas
Grundriss 3. Obergeschoss, Scheiben
Drawing © Schneider Studer Primas
Photo © Andrea Helbling, Arazebra, Zürich
Grundriss 3. Obergeschoss, Blöcke
Drawing © Schneider Studer Primas
Photo © Andrea Helbling, Arazebra, Zürich
Haus 1: Reihenloft
Drawing © Schneider Studer Primas
Haus 1
Photo © Andrea Helbling, Arazebra, Zürich
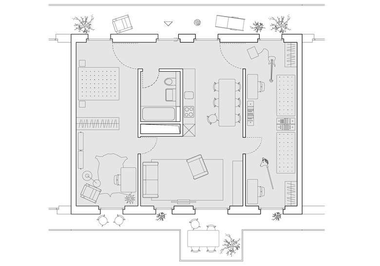
Haus 2: 3.5 Zimmer Wohnung
Drawing © Schneider Studer Primas
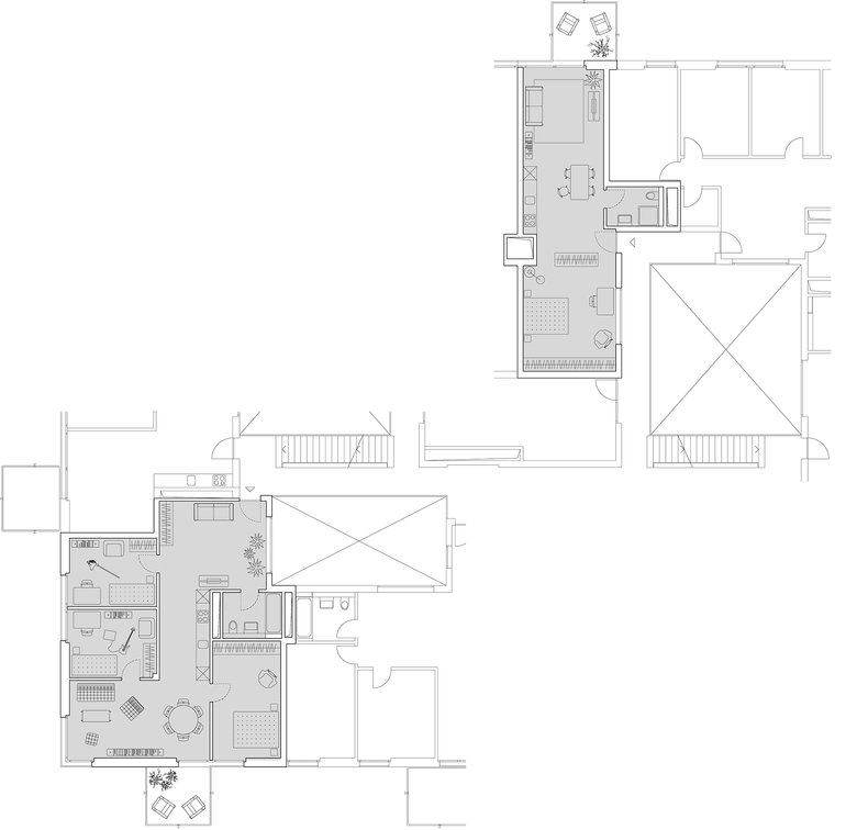
Haus 4: 4.5 Zimmer Wohnung
Drawing © Schneider Studer Primas
Haus 6
Photo © Garon.ch
Haus 6: 3.5 Zimmer Wohnung
Drawing © Schneider Studer Primas
Photo © Andrea Helbling, Arazebra, Zürich
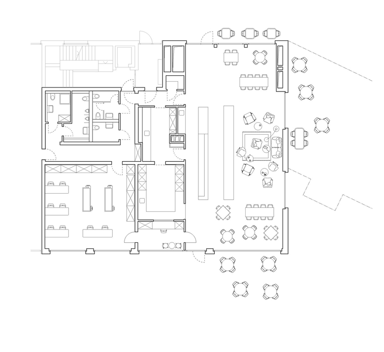
Haus 4: Restaurant Zwiback
Drawing © Schneider Studer Primas
Bistro Zwiback
Photo © Andrea Helbling, Arazebra, Zürich
Hotel Zwiback
Photo © Andrea Helbling, Arazebra, Zürich
Haus 3: Grundriss Eckwohnung und Studio
Drawing © Schneider Studer Primas
Haus 3: Wohnküche
Photo © Andrea Helbling, Arazebra, Zürich
Haus 5: 1. Obergeschoss
Drawing © Schneider Studer Primas
Haus 5: 4.5 Zimmer Wohnung
Photo © Andrea Helbling, Arazebra, Zürich
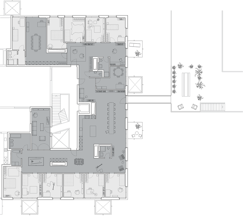
Haus 5 und 6: Gross WG Cluster
Drawing © Schneider Studer Primas
Haus 5: Treppenhaus
Photo © Andrea Helbling, Arazebra, Zürich
Photo © Andrea Helbling, Arazebra, Zürich
Jaar
2016
Project Status
Built
Klant
Teilbereich A (Häuser 4, 5 und 6) Bau- und Wohngenossenschaft Kraftwerk1, Zürich Bistro Hotel ZwiBack: Stiftung Altried, Zentrum für Menschen mit Behinderung, Zürich Teilbereich B1 (Haus 2) Anlagestiftung Turidomus (Pensimo Management AG), Zürich Teilbereich B2 (Haus 3) Anlagestiftung Adimora (Pensimo Management AG), Zürich Teilbereich C (Haus 1) Anlagestiftung Swiss Life (Swiss Life AG)
Team
Martin Arnold, Sarah Birchler, Aline Brun, Savvas Ciriacidis, Nuno Correia, Ladina Esslinger, Dominik Joho, Marco Kistler, Amadeo Linke, Liliana Miguel, Laurent Nicolet, Zlatina Paneva, Lukasz Pawlicki, Marina Peneva, Shohre Shafie, Valentina Sieber, Matthew Tovstiga, Thai Tran, Felipe Valadares, Schneider Studer Primas Architekten GmbH Ivo Hasler (Projektleitung), Elisabeth Zissis (Stv. Projektleitung) Francisco Amado
Landschaftsarchitekt
Lorenz Eugster Landschaftsarchitektur und Städtebau GmbH, Zürich
Bauingenieur
Schällibaum AG, Ingenieure und Architekten, Herisau
Bauingenieur Vorprojekt
Conzett Bronzini Gartmann, Chur
HLSE
Amstein + Walthert AG, St.Gallen/Zürich
Kälteplanung ZwiBack
Rohr-KälteConsulting, Watt
Bauphysik
Kopitsis Bauphysik AG, Wohlen, Ernst Basler + Partner, Zürich (Lärmschutz)
Akustik ZwiBack
Grolimund + Partner AG, Aarau
Fassadenplanung
Atelier P3, Zürich, Fiorio Fassadentechnik GmbH, Zuzwil
Gastroplanung ZwiBack
planbar ag, Zürich
Signaletik
anstalt.ch, Zürich
Signaletik ZwiBack
Signaletik ZwiBack
Projektentwicklung
Senn Resources AG, St.Gallen mit Wüest & Partner, Zürich
Totalunternehmung
Senn Resources AG, St.Gallen
Bauleitung ZwiBack
Bauleitung ZwiBack

Andere projecten van Schneider Studer Primas 

Studienauftrag Wohnen am Stadtgarten
Illnau-Effretikon
Studienauftrag Sonnenfeld Süd
Romanshorn, Zwitserland
Campus Santé
Lausanne, Zwitserland
Projektwettbewerb Hochhaus Areal Saurer WerkZwei
Steinach
Instandstellung Alterssiedlung Dufourstrasse
Zürich-Seefeld, Zwitserland