Projektwettbewerb Neubau Hochhüsliweid

Luzern
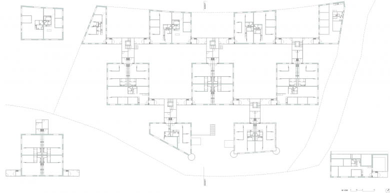
Grundriss Niveau 1
Drawing © Schneider Studer Primas

Die neun einfachen Bauvolumen strahlen mit dem hellen Wormserputz und den grossflächigen, raumhohen Fenstern zurückhaltende Eleganz aus. Die Treppentürme und die zwischengespannten privaten Lauben und Wintergärten ergänzen diese Grundatmosphäre und fügen sich zu einem Gesamtbild von heiterer Leichtigkeit. Gebäude und Freiraum bedingen sich gegenseitig und stehen zueinander in einem harmonischen Einklang. Die privaten Lauben sind durch mannigfaltig blühende und duftende Kletterpflanzen berankt, sodass der Eindruck von ‚hängenden Gärten› entsteht.

Über die gemeinsamen Treppen, welche jeweils vier Wohnungen pro Geschoss erschliessen, betreten wir durch ein ‚Gartentörchen› die eigene Laube, wo vielleicht schon der Apéro auf uns wartet. Im unbeheizten Wintergarten, der sich im Sommer vollkommen öffnen lässt und im Winter ein angenehmes Zwischenklima bildet, ziehen wir Mantel und Schuhe ab um dann weiter in den Ess- oder Wohnraum zu treten. Es entsteht so ein sukzessiver Übergang vom gemeinschaftlichen zum privaten Raum. Die Wohnungen zeichnen sich durch räumliche Vernetzung mit vielfältigen Raumbezügen aus. Trotz mässiger Grundrissgrössen sind die Wohnungen dadurch weitläufig und grosszügig. Sämtliche Wohnungen haben verschieden Ausblicke zu verschiedenen Seiten, die kleinsten sind zweiseitig übereck orientiert, die grösseren dreiseitig und einige sogar rundum. Zusammen mit den grossen Fenstern entsteht eine wohnliche und helle Wohnatmosphäre.
Der Wohnungsmix mit 2 ½ bis 6 ½ Zimmerwohnungen, die ergänzenden drei Clusterwohnungen und die vier Jokerzimmer im mittleren Haus lassen eine vielfältige Bewohnerschaft erwarten. Neben Familien mit Kindern, älteren Paaren und Alleinstehenden werden auch Wohngemeinschaften die Siedlung bewohnen. Die Wohnnutzung wird durch verschiedene gemeinschaftliche Einrichtungen ergänzt. An der Hochhüsliweidstrasse bilden die drei offenen Plätze den Auftakt zur Siedlung. Vis-à-vis sind in den umgenutzten Garagen der bestehenden Siedlung der SBL kleine Werkstätten, Hobbyräume und eine Velowerkstatt untergebracht, welche durch eine Cafétheke ergänzt wird und auch als Gemeinschaftsraum genutzt werden kann. Der Co-Working-Space ist ebenfalls hier vorgesehen, alternativ könnte er auch in der neuen Siedlung im Erdgeschoss des Hauses 2 statt der 5-½ Zimmerwohnung untergebracht werden.
Zum bestehenden Spielplatz mit dem Spielhaus als Dreh- und Angelpunkt des Quartiers gesellt sich der Kindergarten mit vorgelagertem Aussenraum gegen Süden.

Die aussenliegenden Treppenanlagen und Lauben versprechen einen regen Austausch der Bewohner untereinander, gleichzeitig schaffen Balkonvorhänge und Pflanzenbewuchs einen Filter und gewährleisten die nötige Privatsphäre. Der Übergang vom öffentlichen und gemeinschaftlichen zum privaten Raum ist nuanciert ausformuliert.

Grundriss Niveau 2
Drawing © Schneider Studer Primas
Grundriss Niveau 3
Drawing © Schneider Studer Primas
Schnitt 1
Drawing © Schneider Studer Primas
Schnitt 2
Drawing © Schneider Studer Primas
Grundriss Geschoss 1
Drawing © Schneider Studer Primas
Grundriss Geschoss 2
Drawing © Schneider Studer Primas
Klant
SBL Wohnbaugenossenschaft Luzern

Andere projecten van Schneider Studer Primas 

Depot Hard
Zürich, Zwitserland
Projektwettbewerb Ersatzneubau Rautihalde
Zürich - Altstetten
Projektwettbewerb Neubau Wohnsiedlung Herdernstrasse
Zürich
Schulhaus Wallrüti
Winterthur, Zwitserland
Projektwettbewerb Neubau Zentralgebäude Johanneum
Neu St. Johann