Projektwettbewerb Gemeindezentrum
Das gegebene Raumprogramm füllt die beiden zur Verfügung stehenden Parzellen bis fast an deren Rand. Es brauchte daher gezielte Massnahmen, um Raum für die Öffentlichkeit freizuspielen. Während ein bereits existierender Dorfplatz aus den 70er/80er Jahren eher einem introvertierten Hinterhof gleicht, leistet die Setzung der beiden neuen Zentrumsbauten einen Beitrag zur Klärung der Hierarchien im öffentlichen Raum und etabliert die Bahnhofstrasse als erste Adresse von Steinhausen. Analog der schon bestehenden öffentlichen Vorplätze, welche abwechselnd links und rechts entlang der Bahnhofstrasse aufgereiht sind, docken die Bauten mit einem gedeckten Eingangsbereich für Markt und Wohnungen einerseits und einem grossen gedeckten Platz vor Saal und Bibliothek andererseits an diese neu definierte Hauptachse von Steinhausen an.
Hierarchisch untergeordnet werden die Einstellhallen für den Privatverkehr und die beiden Anlieferungen für Mehrzwecksaal und Markt von der Kirchmattstrasse her erschlossen. Eine feingliedrige Fortführung des Fusswegnetzes erfolgt entlang der rückseitigen Parzellengrenzen und ergänzt die bestehenden Wegeverbindungen des Umfeldes.
Die vier Programmpunkte des komplexen Raumprogramms (Einkaufen, Wohnen/Gemeindesaal/Bibliothek und Ludothek) wurden mit einem gemeinsamen architektonischen Thema facettenreich formuliert. Während die Erdgeschosse als flexible, offene Hallen konzipiert sind, haben die darüberliegenden Geschosse eine relativ engmaschige Tragstruktur. Der Saal bleibt dank des räumlichen Fachwerks der Bibliothek, welches an nur vier Punkten abgestützt werden muss, komplett stützenfrei.
Die Hallenkonstruktion des Marktes funktioniert mit einem optimalen Stützenraster von bis zu 10.5 Metern als Tisch mit einer kassettierten Decke. Die beiden darüberliegenden Wohngeschosse werden in Schottenbauweise mit einem wirtschaftlichen Achsmass von 3.50m als Holzkonstruktion gebaut.
Der Mehrzwecksaal und das Foyer öffnen sich transparent auf drei Seiten und strahlen Festlichket aus. Mit dem grosszügigen, überdachten Vorbereich entsteht zur Bahnhofstrasse hin ein Platz mit natürlichem Öffentlichkeitscharakter.
Die Flexibilität des Saales erlaubt unterschiedlichste programmatische Szenarien und dient damit ‚mehreren Zwecken’.
Via Lift und über die hängende Freitreppe erreicht der Besucher einen offenen Lichthof im Obergeschoss. Von dort erschliessen sich auf der einen Seite die Ludothek, auf der andern die Bibliothek. Die vier Innenhöfe versorgen den Bibliotheksraum in Ergänzung mit den Oblichtern mit optimalem Tageslicht und dienen als erweiterte Lesebereiche im Sommer. Im Winter werden sie durch verschiebbare Dachverglasungen zum Wintergarten. Die Introvertiertheit der Bibliothek gewährt eine ruhige Grundstimmung abseits von Hektik.
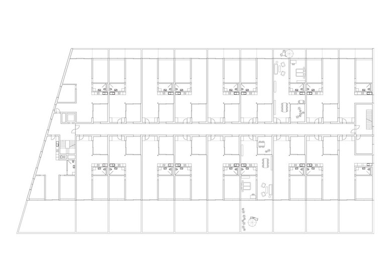
Die Alterswohnungen sind in zwei Geschossen über dem Grossverteiler untergebracht. Im ersten Obergeschoss befinden sich die Zweizimmerwohnungen, welche von einem über die Patios natürlich belichteten ‚Hotelgang’ erschlossen sind. Die Wohnungen selbst sind gegen Osten oder Westen orientiert. Sie sind durch vielfältige Aussenraumbeziehungen gekennzeichnet: Neben den grosszügigen Terrassen besitzen die Wohnungen einen zusätzlichen Patio, welcher Küche und Eingangsbereich belichtet und wo man sich an heissen Sommertagen an die Kühle zurückziehen kann. Im Winter wird dieser Patio durch Schliessen des Glasdaches zum Wintergarten. Die Dreizimmerwohnungen im 2. Obergeschoss sind analog ebenfalls mit aussenliegender Terrasse und innenliegendem Patio ausgestattet.
- Jaar
- 2009
- Project Status
- Design
- Klant
- Gemeinde Steinhausen
- Team
- Alexander Schmid Landschaftsarchitektur










