Löwen Hotel Montafon
Das Löwen Hotel Montafon befindet sich im malerischen Bergdorf von Schruns und wurde 1974 erbaut. Im Jahr 2013 wurde das Gebäude komplett entkernt und renoviert. Zehn Jahre später entspricht das Hotel in Stil und Funktion immer noch den hohen Anforderungen der verschiedenen Gästegruppen. Der grosse Erfolg des Hauses gab zuletzt doch vielen Ideen Raum für Wachstum, was 2023 auch in die Realität umgesetzt wurde. Heute erstrahlt das Löwen Hotel Montafon mit einem neuen Erweiterungsbau, welcher mit dem Haupthaus verbunden ist und so seinen Gästen in nichts nachsteht.
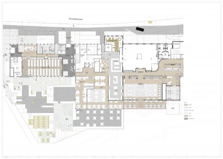
Der ursprüngliche Renovations-Entwurf für das Hauptgebäude basierte auf einem zeitgenössischen Alpine-Chic-Stil, der stark von traditionellen Elementen der Region beeinflusst ist. Der neue Erweiterungsbau hingegen harmonisiert zwar Stilistisch mit dem Hauptgebäude, schafft aber mit seinem modernen Linien einen wunderschönen, einzigartigen Ort für Gäste zum Entspannen und Erholen, aber auch zum Arbeiten und Feiern.
Die Gebäudehülle der Erweiterung ist eine neuartige Interpretation der traditionellen Alpenhäuser mit langen Holzlamellen an der Fassade und einem für die Umgebung typischen weissen Gebäudesockel. Das Innere ist geschmackvoll und gemütlich eingerichtet mit eleganten Details und hochwertigen Materialien.
Alles in Allem ist der Neubau ein echter flexibler Hybrid mit großzügigen Konferenzräumen, multifunktionalen Foyers, großen Familienzimmern und verschiedenen Restaurants. Aber auch ein Nachtclub, der tagsüber z.B. für Lesungen genutzt werden kann.
- Jaar
- 2023
- Klant
- Hotel Löwen Schruns GmbH
- Team
- Kamila Kawecka, Anna Kaltwasser, Monika Blach, Philip Wohlfarth















