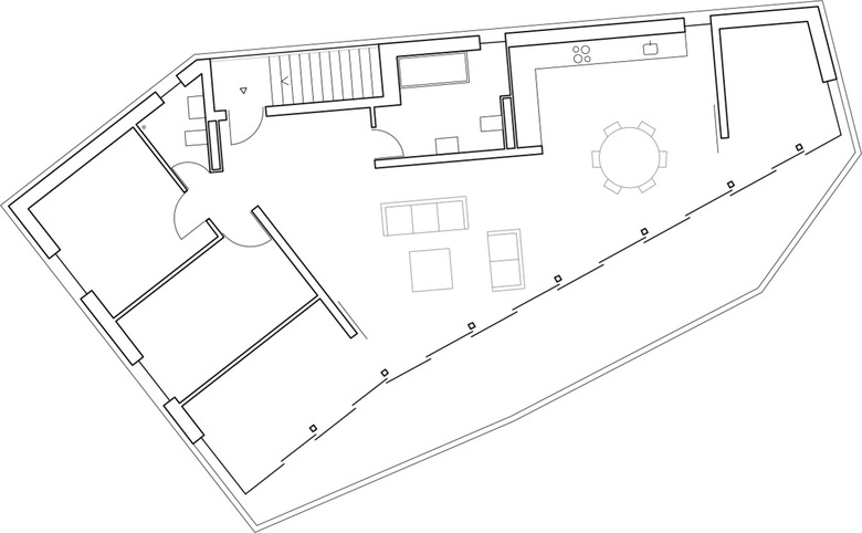
Logements à Neuchâtel

Photo © Michel Bonvin
Photo © Michel Bonvin
Photo © Michel Bonvin
Photo © Michel Bonvin
Photo © Michel Bonvin
Photo © Michel Bonvin
Photo © Michel Bonvin
Photo © Michel Bonvin
Photo © Michel Bonvin
Photo © Michel Bonvin
Jaar
2015
Klant
Privé

Andere projecten van LOCALARCHITECTURE 

La Maison de l’Île aux oiseaux
Préverenges, Zwitserland
Siège international de la FIM (Fédération Internationale de Motocyclisme)
Mies, Zwitserland
3 villas contigües à Renens
Renens, Zwitserland
Maison familiale à Confignon
Confignon, Zwitserland
Eco-quartier "Cité Léopard"
Carouge, Zwitserland