MPREIS und Wohnen Volders

Schönwerth-Park 2, 6111 Volders, Oostenrijk
Photo © Marc Lins Photography

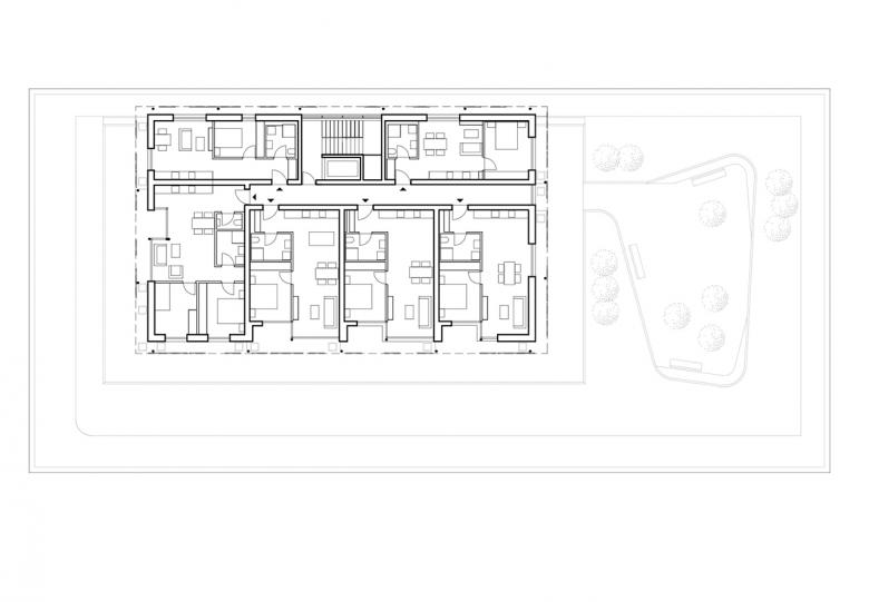
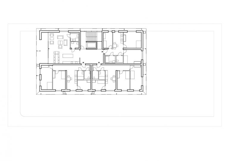
In zweiter Reihe zur Landesstraße ist in Volders ein neuer MPREIS Supermarkt mit einem darüberliegenden Wohnbau entstanden. Der Neubau löst eine bestehende Filiale ab und ergänzt an diesem Standort nicht nur ein neues Baguette Café und eine Tiefgarage, sondern darüber hinaus einen dreigeschoßigen Wohnbau mit 16 Wohnungen, wobei die Wohnungen im obersten Geschoß als betreutes Wohnen speziell älteren Menschen mit erhöhtem Pflegeanspruch zur Verfügung gestellt werden.

Baukörper - Stapeln der Nutzungen

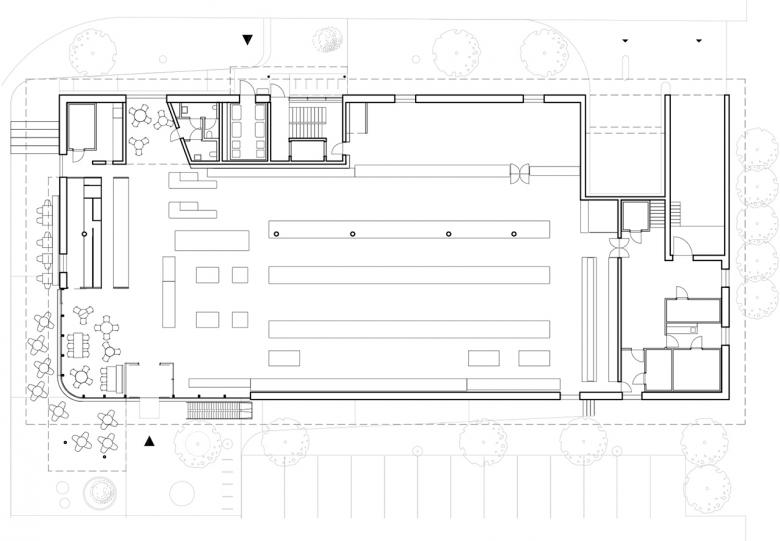
Der hohe Marktkörper vereint den Markt mit Baguette Café, Lagerräumlichkeiten und Anlieferung, sowie die Erschließung für das Wohnen und die Tiefgaragenein- und ausfahrt unter einem Dach.

Der Eingangsbereich des Markts wird durch großzügige Fensterflächen und ein auskragendes Vordach, das die Fassade durchdringt und den Cafébereich im Inneren zoniert, betont. Die an den Eingang anschließende großzügige Terrasse ist nach Südwesten und somit zum Ortskern und zum benachbarten, ebenfalls neu entstandenen, Haus der Generationen ausgerichtet, und schafft hier gemeinsam mit Sitzmöglichkeiten und Bepflanzungen einen hochwertigen Vorbereich.

Ein umlaufendes schlankes Vordach, das den Marktkörper nach oben hin abschließt, erscheint wie eine Tischplatte, auf dem der dreigeschoßige Wohnbaukörper sitzt, der vom Parkplatz Richtung Norden zurückversetzt ist, um mehr Privatsphäre für die Bewohner zu schaffen. Daraus resultiert eine großzügige Grünfläche auf dem Marktdach, die den Wohnbaukörper umgibt, sodass man fast vergessen könnte, auf einem Supermarkt zu wohnen. Zusätzlich macht eine Dachterrasse das Marktdach allen Bewohnern des Hauses zugänglich.

Hochwertiger Gewerbebau mit industriellem Charakter

Der neue MPREIS Markt wird als innovativer hochwertiger Gewerbebau mit industriellem Charakter konzipiert. So ist die Fassade des Markts mit einem weißen, perforierten Wellblech ausgeführt, das den hohen Marktkörper im Erdgeschoßbereich wie einen Vorhang umhüllt. Dieser öffnet sich großzügig im Eingangsbereich und dem Baguette zur Öffentlichkeit hin, und für einige gezielte Ausblicke ins Freie zwischen den Regalen und im Bereich der Kassa.

Die Fassadenfläche des Markts wird nach oben hin in Form von Blend- und Sichtschutzelementen für den Wohnbau weitergezogen, um eine Symbiose dieser Körper zu erzeugen.

Der Wohnbaukörper mit vertikaler Holzverkleidung und raumhohen 3-fach Isolierverglasung wirkt als Konterpart zum industriellen Charme des Markts und macht die verschiedenen Nutzungen von außen leicht erkennbar. Die davorgestellten Putzbalkone gliedern den Körper horizontal und bieten den Bewohnern, neben den in den Körper eingeschnittenen Loggien, einen zusätzlichen Außenbezug, dienen darüber hinaus aber auch als Verwitterungsschutz für die Holzfassade.

Der Innenraum des Supermarkts ist wie die Fassade in weiß gehalten, wodurch die Produkte für sich selbst sprechen. Akzente wurden bei der Theke und der Rückwand des Baguettes sowie bei der farbigen Bestuhlung gesetzt. Für die Rückwand der Wursttheke wurde ein stilisiertes Stillleben entwickelt.

Ökologische Nachhaltigkeit

Ressourcenschonendes Bauen bedeutet im alpinen Raum vor allem flächenschonendes Bauen. Angesichts der Bodenknappheit und steigender Grundstückspreise erscheint die vertikale Mehrfachnutzung sinnvoll, ist in Tirol aber noch eine Neuheit. Deshalb ist der MPREIS Volders der erste neugebaute Supermarkt, der das Marktdach für eine zusätzliche Nutzung ausbildet.
Eine zusätzliche Flächenersparnis ergibt sich durch die Verwendung des bereits bestehenden Parkplatzes. Durch die Erweiterung des Parkraums um den Bau einer neuen Tiefgarage war keine zusätzliche Versiegelung für Parkplätze notwendig.
Grünflächen für die Versickerung und großzügige Baumpflanzungen in der Erdgeschoßzone und im Bereich des Parkplatzes sollen einen Bezug zum anliegenden Schönwerth Feld schaffen und der Wärmeentwicklung im Sommer entgegenwirken. Zusätzlich wird die Dachfläche des Markts als Gründach ausgeführt und das Dach des Wohnbaukörpers zur Energiegewinnung in Form einer Photovoltaikanlage verwendet.

Wie fast alle neuen Supermärkte der Firma MPREIS wurde auch der MPREIS Volders gemeinsam mit dem Wohnbau als Passivhaus konzipiert.

Bauweise

Der Markt ist aufgrund der statischen Erfordernisse in Stahlbeton, die Fassade mit Mineralwolle und einer hinterlüfteten Metallfassade ausgeführt. Die Marktdecke trägt den Wohnbaukörper in Massivholzbauweise in Form von BSP-Platten. Dieser wurde ebenfalls mit Mineralwolle gedämmt und mit einer hinterlüfteten vertikalen Holzverkleidung beplankt. Lediglich der Erschließungskern wurde ebenfalls in STB-Bauweise realisiert.

Aus möglichst wenigen Kompositwerkstoffen hergestellt, werden im Sinne einer Kreislaufwirtschaft auch das Recycling und Verwertung der Baustoffe mitgedacht.

Photo © Marc Lins Photography
Photo © Marc Lins Photography
Photo © Marc Lins Photography
Photo © Marc Lins Photography
Photo © Marc Lins Photography
Photo © Marc Lins Photography
Photo © Marc Lins Photography
Photo © Marc Lins Photography
Lageplan
Drawing © LAAC
Grundriss Markt
Drawing © LAAC
Grundriss 1.Obergeschoss
Drawing © LAAC
Grundriss 3.Obergeschoss
Drawing © LAAC
Schnitt
Drawing © LAAC
Ansicht Süd
Drawing © LAAC
Ansicht Nord
Drawing © LAAC
Ansicht Ost
Drawing © LAAC
Ansicht West
Drawing © LAAC
Jaar
2022
Klant
MPREIS Warenvertriebs GmbH
Architektur
Kathrin Aste, Frank Ludin, Daniel Luckeneder, Simone Brandstätter, Simon Benedikt, Tobias Dorsch, Julian Fahrenkamp, Simon Paukner, Ufuk Sagir, Laura Winterberg
Konsulenten
Alfred Brunnsteiner Statik, HG Engineering Elektrotechnik, Ingenieurbüro Pratzner Haustechnik, Fiby ZT GmbH Bauphysik, Passivhausinstitut

Andere projecten van LAAC 

HYPO Tirol Kufstein
Kufstein, Oostenrijk
MPREIS Weer
Weer , Oostenrijk
Austro Control Zentrum Wien
Wien, Oostenrijk
Privates Wohnhaus
Innsbruck, Oostenrijk
Skijump Schushinsk Astana
Schushinsk, Kazakhstan