Arvind Mills Corporate Studio
Built over an area of 520 sq.m., the studio is set within its mill compound at Ahmedabad and deals with India’s leading composite manufacturing of textiles.
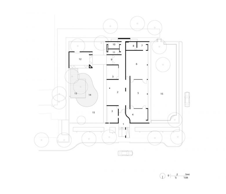
The entrance abuts the road and the piano wall beckons the visitors in. The studio is an independent, rectangular, single storey structure located in a garden. Adjoining the main studio is a pavilion used primarily as an informal meeting area. The major consideration in the design was to blend the relationship of the interior and exterior, so as not to distinguish the office spaces and the landscaped garden but bring them together in a unity, complete and whole that is indivisible. The building is built in concrete and the fair-face surface also contributes greatly as a design feature.
- Jaar
- 2003
- Project Status
- Built




