Multifunktionale Überbauung Gare des Eaux-Vives

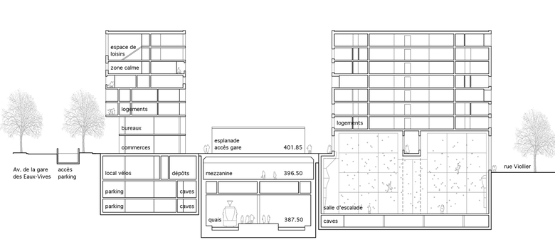
Das Quartier des Eaux-Vives erstreckt sich vom Seeufer bis zum gleichnamigen Bahnhof und zeichnet sich durch seine einheitliche, sich nach oben schrittweise öffnende Blockrandbebauung aus. Die geplante, multifunktionale Überbauung nimmt diese vorhandene Hoftypologie des Quartiers auf und interpretiert sie als kammförmiges, zur Stadt hin offenes Ensemble. Eine schlanke Wohnscheibe bildet das Rückgrat der Anlage, welche von drei Genossenschaften mit unterschiedlichen Zielgruppen (Studenten-, Familien- und Alterswohnungen) verwaltet werden soll. Zwei grosszügig angelegte Treppenhäuser fungieren als horizontale Boulevards und Treffpunkte der Generationen. Der mittlere Platz wird als Sockel ausgebildet und dient als Drehscheibe zum neuen unterirdischen S-Bahnhof. Entlang dieser gebauten Geländekante reihen sich diverse Volumen und Nutzungen (kulturelle und soziale Einrichtungen, Sport- & Kletterhalle, Hallenbad, Einkaufszentrum, Wohnungen). Die kontrastierenden Massstäbe und Proportionen der Baukörper bilden eine markante Silhouette als Stadtkrone – La Linea –und machen somit die neue, verborgene Verkehrsanlage zum städtebaulichen Referenzpunkt.

Project Status
Design

Andere projecten van GXM Architekten 

Le Ticle Zentrumsüberbauung
Delémont, Zwitserland
Familien- und Generationenhaus
Zürich, Zwitserland
Dauerausstellung MICR
Genf, Zwitserland
Wohnwerkstatt
Dübendorf, Zwitserland
Erweiterung Schulanlage
Delémont, Zwitserland