AKKORD Gesundheitszentrum
Ziel: Eine Gesamtkonzeption für Wohnen, Pflege und weitere, die Gesundheit betreffende Dienstleistungen unter Berücksichtigung öffentlicher und betrieblicher Interessen.
Problemstellung: Ein mehrphasiger Massnahmenkatalog mit Um- und Neubauten wird heutigen sowie künftigen Bedürfnissen gerecht. Der Betrieb ist während der gesamten Bauzeit durch Provisorien gewährleistet.
fsp: Das Projekt AKKORD verfolgt eine gesamtheitliche Arealgestaltung mit altersgerechten Wohnungen und dem um ein Pflegezentrum erweitertes Gesundheitszentrum rund um die Fröhlichstrasse, um Synergien optimal nutzen zu können.
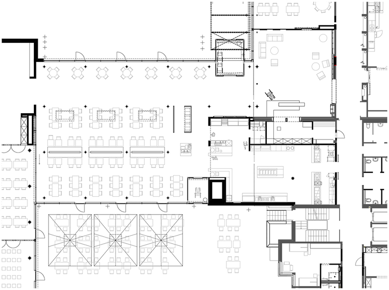
Das über einen Verbindungstrakt direkt mit dem Gesundheitszentrum verbundene Pflegezentrum bietet 100 Pflegezimmer, Therapie- und Büroräume sowie Aufenthalts- und Versammlungsräume. Gastronomisch werden eine zentral gelegene, offen gestaltete Cafeteria mit Selbstbedienungsbuffet sowie ein bedientes Restaurant angeboten. Im Zuge der Neuerungen werden auch infrastrukturelle Räume wie z.B. Küche und Wäscherei umgebaut sowie energetische Massnahmen in Bezug auf Haustechnik Gebäudehülle durchgeführt.
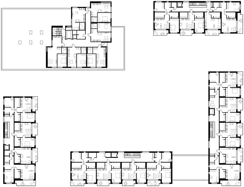
Die um einen Grünraum gruppierten Wohnbauten sowie das sanierte Hochhaus bieten zeitgemässe Grundrisse sowie ein umfangreiches Angebot an gesundheitlichen Dienstleistungen.
- Jaar
- 2019










