Schmuckgalerie im Louvre
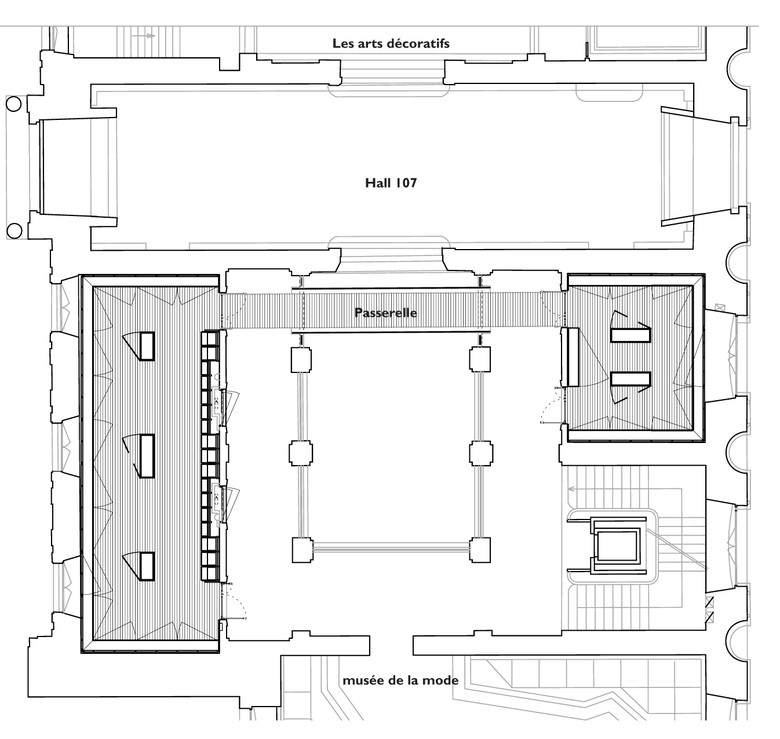
Konzipiert als eine Verbindung zwischen der historischen Architektur des Louvre und einer äussert zeitgenössischen Szenographie, verbindet die neue Passerelle die zwei Schmuckgalerien.
Das Design und die Signaletik in den Galerien lassen die Bauelemente verschwinden, die Schmuckstücke werden wahrgenommen wie wenn sie im Raum schweben würden.
Die Aufgabe bestand in der Entwicklung des Projekts aufgrund des Konzepts der Inszenierung der Schmuckstücke von Roberto Ostinelli.
Planung und Realisation dieses Museums im Herzen des Louvre erforderten eine äusserst breite Zusammenarbeit zwischen Goldschmied, Denkmalschutz, Kurator, Lichtplaner, Statiker etc.
AUFTRAGGEBER
Les Arts Décoratifs (Museum in Paris)
AUFGABE
Realisierung eines permanenten Schmuckmuseums
PLANUNGSTEAM
Roberto Ostinelli, Szenograph
Urs Keller, Architekt
C&E Ingénierie, Statik
PROGRAMM
Schmuckgalerie & Schaffung einer Passerelle
FLÄCHE
150 m² Ausstellungsfläche
ZEITPLAN
Eröffnung im Juni 2004
- Jaar
- 2004
- Project Status
- Built


