NBO Innenausbau und Raumgestaltung Büro ÖVW
Im Wohnen daheim, im Arbeiten zuhause
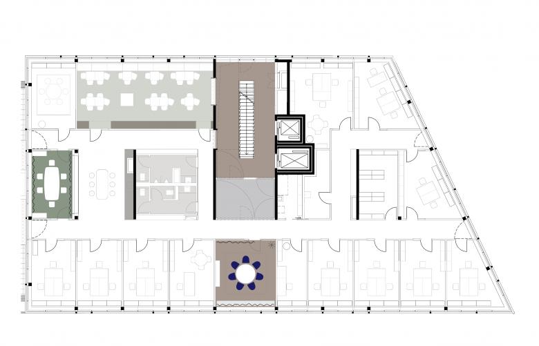
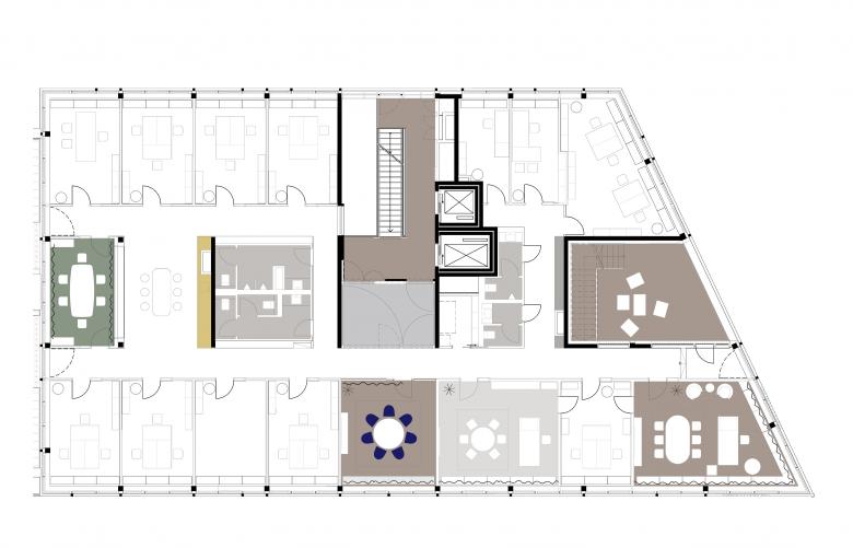
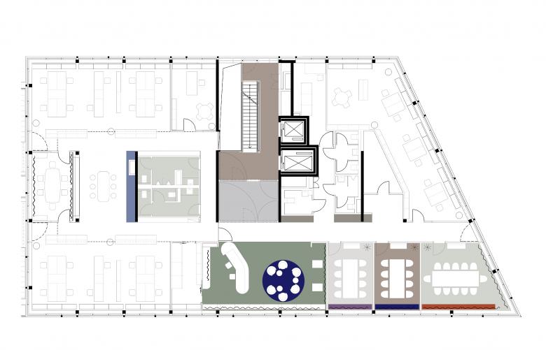
Als Wohnbauunternehmen setzt es sich das Österreichische Volkswohnungswerk seit jeher zum Ziel, Wohnen neu zu leben. Sein Leitspruch: Willkommen daheim. Willkommen beim ÖVW. Der damit einhergehende Wunsch, auch den Arbeitsalltag neu zu kontextualisieren, drückt sich nun auch in seinen Büroräumlichkeiten am Tabor aus. So gründet die Innenraumgestaltung auf der kraftvollen Kombination aus belebenden Grün- und Blautönen und spürt dem menschlichen Bedürfnis nach Ruhe, Weite und Natur nach. Klare Formen, akzentuierende Leuchtkörper, solide Bodenbeläge, pointilistisches Dekor und ein sich sanft einfügendes Holzmobiliar schaffen eine zurückhaltende und dennoch inspirierende Atmosphäre – einen Ort des betriebsamen Beisammen- und des produktiven Beisichseins.
Ganze acht Stunden verbringt der Durschnittsmensch pro Tag im Büro, ebenso viele im Schlaf und lediglich acht weitere als Freizeit. Ziel des Entwurfs von AllesWirdGut war es deshalb, jenes anheimelnde Wohlbefinden in ein räumliches Gestaltungskonzept zu integrieren, das wir sonst nur von zuhause kennen. Vom Entree bis zur Dachterrasse, vom flexiblen Arbeitsplatz bis zum transparenten Besprechungsraum schafft das von Tageslicht durchzogene und von Durchsichten geprägte Büro des ÖVW diversifizierten Raum zur freien Entfaltung des Geistes, für konstruktives Denken, für Konzentration und natürliche Motivation. Das Credo in Stilsachen lautete: Weg vom künstlichen Minimalismus, hin zur klassischen Eleganz im zeitgenössischen Stil. Willkommen daheim!
- Jaar
- 2019
- Klant
- ÖVW – Österreichisches Volkswohnungswerk
- Team
- Alina Schwarz, Andreas Schmid, Asli Candan, Lena Schweiger, Lucia de la Duena Sotelo, Monica Petecka, Rachele Albini, Svetla Stoyanova, Thomas Scheiblauer, Vit Gerhard
- Techn. Generalplanung, Projektsteuerung & ÖBA
- DELTA Projektconsult
















