NBD Doppelmayr Büro Hohe Brücke
Global Village
Die prägnante Silhouette der neuen Unternehmenszentrale markiert den Auftakt zum Gewerbegebiet Hohe Brücke in Wolfurt. Der in Einzelbaukörper aufgelöste Gebäudekomplex schafft trotz unterschiedlicher Volumina und Höhen ein überzeugendes Ganzes mit einer signifikanten Präsenz. Geprägt durch starke Identität und hohen Wiedererkennungswert wird das Unternehmen mit dem Neubau auch visuell in der Ebene des Rheintals verortet.
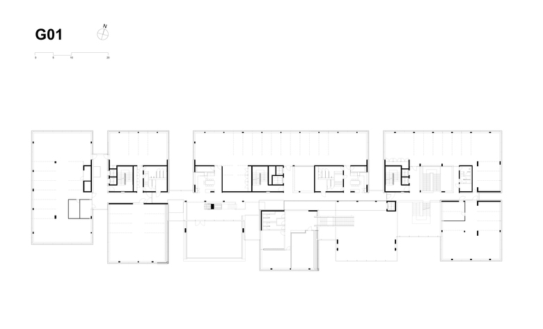
Das führende Technologieunternehmen Doppelmayr ist traditionell in Wolfurt verwurzelt und seit jeher in die dörfliche Struktur des Ortsteils Rickenbach eingebettet. Die Neuinterpretation ebenjener städtebaulichen Situation am neuen Standort stellt das Leitmotiv des Neubaus dar. Entlang eines inneren Rückgrates, an dem alle Gemeinschaftsflächen situiert sind, gruppieren sich in den Einzelhäusern unterschiedlich große Bürobereiche.
Der räumliche Erlebniswert dieser Erschließungszone mit seinen Ein-, Aus- und Durchblicken ist von hoher räumlicher Qualität und stellt die Besonderheit des Entwurfes dar. Kommunikation, interner Austausch und das Miteinander werden in den Vordergrund gestellt, gleichzeitig ist Konzentration und ruhiges Arbeiten möglich.
Der Bau unterstreicht Eigenschaften wie Präzision, Innovation und technische Avanciertheit, für die das Vorarlberger Unternehmen steht, gleichzeitig rücken die MitarbeiterInnen, die hier arbeiten, in den Mittelpunkt.
- Jaar
- 2017
- Klant
- Doppelmayr Immobilien GmbH
- Team
- Johannes Windbichler, Dennis Assaf, Magdalena Drach, Philipp Feldbacher, Florian Gottler, Olaf Härtel, Thomas Hold, Simona Masárová, Alexander Mayer, András Nagy, Simon Höbel, Jörg Spraider, Kai Sommer, Ivana Valekova
- Bauphysik
- Spektrum GmbH, Dornbirn
- Brandschutz
- K&M Brandschutztechnik GmbH, Lochau
- Dynamische thermische Simulation
- Büro für Technische Physik Christoph Muss, Wien
- Elektroplanung
- IHM-Elektrotechnik, Hörbranz
- Fassadenplanung und Schwarzdeckerplanung
- gbd Projects ZT GmbH, Dornbirn
- Geotechnik
- BGG Consult GmbH, Hohenems
- Haustechnikplanung
- GM Ingenieure, Dornbirn
- Landschaftsplanung
- Gruber & Haumer, Bürs
- Örtliche Bauaufsicht und BauKG
- BM Michael Hassler, Dornbirn
- Projektsteuerung
- ZIMA Holding AG, Dornbirn | M.O.O.CON GmbH, Wien
- Statik
- Mader | Flatz ZT GmbH, Götzis
- Wasser- und Umwelttechnik
- Ingenieurbüro Landa GmbH, Dornbirn


























