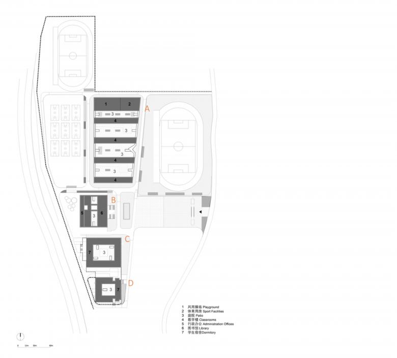
Dushan School Complex
Dushan Town is located at the so-called "South Gate of Guizhou" at the border with Guangxi province. The main residents in this area belong to Buyi, Miao, and Shui ethnic minorities. The complex of buildings grows on the top of a long foundation stripe, 527m long and 330m wide. The north area is pretty mounted acinous and mainly residential, on the west, there is the highway and both east and south are arterial roads. In the accumulation and precipitation of the long history, Dushan has its own unique features with the local college - Yingshan culture.
Architects based the design of this school complex in order to create a series of courtyards with different levels of privacy, where "listen to the sound of wind and to the sound of reading" according to an old traditional Chinese proverb. The simple severe 'academic' architectural style always meets these open courtyards, some more wide and open, where to practice group sports, others are more quiet where to study or relax, in the dormitory area. These courtyards play with the light creating different environments and iconic shadows. Open terraces and boardwalks over the courtyards create interesting connections and different spaces for students' different needs.
Materials are clear and simple, only cement mortar and white painting on outer walls, where shadows get strong and sharp. Considering local construction workers' lack of skills and a very limited selection of local materials, architects opted for a material selection that could ensure good quality and easy to control results.
- 年
- 2016
- Site Area
- 73000 sqm
- Building Area
- 56491 sqm
- Architects
- West-line Studio
- Lead Architects
- Haobo Wei, Jingsong Xie
- Project Team
- Yuanping Li, Xiaoqiang Yang, Dingping Fu, Minghua Ou
- Graphic
- Martina Muratori











