Haus N.
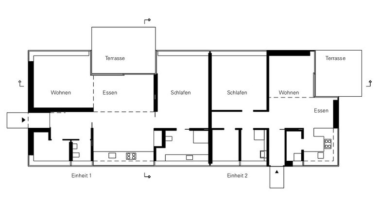
Neben dem denkmalgeschützten Haus X1, das Peter Neufert 1959 erbaute, sollte ein neues, barrierefreies Gebäude für eine Person, mit zuschaltbarer Einliegerwohnung, entstehen. Der Entwurfsansatz sieht eine Überbauung der vorhandenen Fläche des alten Tennisplatzes mit einem eingeschossigen Kubus vor, aus dem zwei Massen herausgeschnitten, hochgehoben und aufs Dach gedreht werden. Hierdurch entstehen auf der ebenen Grundfläche zwei hohe Räume, die Volumen schaffen, große Ausblicke in den Park ermöglichen und von mehreren Seiten Sonne ins Innere des Hauses holen. Um sich zur Straße schall- und energietechnisch zu schützen, sind im Nordwesten die dienenden Räume angeordnet. Diesem Ansatz entspricht die geschlossene Ausbildung der Nordfassade. Die sich in großen Teilen zum Garten und Bestandgebäude öffnende, verglaste Südseite wird durch die beiden herausgeschnittenen Baumassen gebildet, denen die Terrassen vorgelagert sind. Die homogene Metallfassade schafft einen eigenständigen, zurückhaltenden Kontrast zum farbigen X1 Haus. Ein abgestimmtes Energiekonzept mit Betonkernaktivierung, Luft-Wasser-Wärmepumpe und kontrollierter Wohnraumlüftung führt zum Niedrigenergiehaus-Standard.
- 年
- 2013
- LPH
- 1-9
- BGF
- 237 m²
- BRI
- 825 m³
- Energie
- 56,09 KWh/m²a um 35% besser als EnEV
- Auszeichnungen
- Iconic Award 2016, Architecture winner | Häuser des Jahres 2014, Die 50 besten Einfamilienhäuser des Jahres 2014 | Heinze Architekten Award, Shortlist 2014








