Wohnhaus Albisriederstrasse, Zürich

Bauherrschaft: Stiftung PWG Zürich

Direktauftrag, Ausführung 2006

Anlagekosten BKP 1-9: Fr. 1'520'000

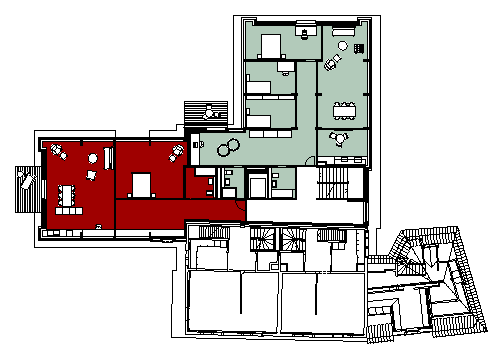
Einbau von vier grossen Wohnungen sowie Räumlichkeiten für eine Primarschule in ein Gewerbegebäude in der Kernzone von Zürich Albisrieden.

Dem Stiftungszweck der Erstellung von preisgünstigem Wohnen und Gewerbe entsprechend wurden die baulichen Eingriffe aus Kostengründen auf ein Minimum beschränkt.

Umso mehr sind die Wohnungen von räumlicher Grosszügigkeit und der Stimmung der ursprünglichen Gewerberäume geprägt.

Die vorgestellten Balkone aus verzinktem Stahl reagieren auf das industrielle Sichtmauerwerk aus Kalksandsteinen.

2006

Stalder & Buol によるその他のプロジェクト 

Mehrfamilienhaus Bristenstrasse, Zürich
Reitanlage Kolbenhof, Zürich
Mehrfamilienhaus Brunngasse, Männedorf
スイス
Buchhandlung 'Never Stop Reading', Zürich
Wohnüberbauung, Herrliberg