Schulzentrum Reben, Arbon
offener Projektwettbewerb, 2009
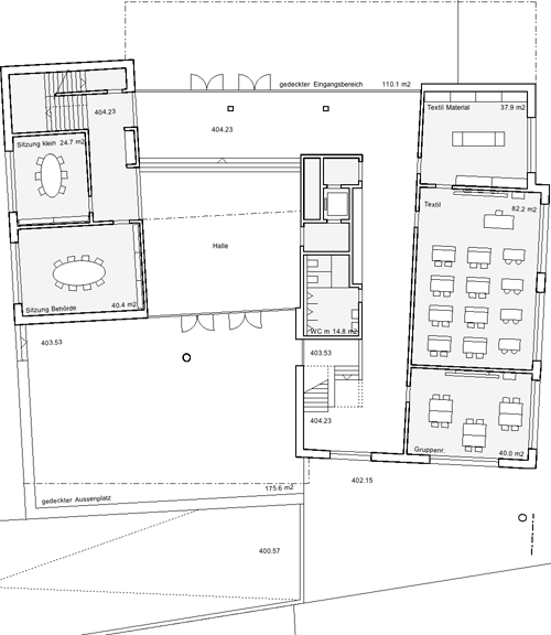
Der Erweiterungsbau besetzt den südlichen Teil der Grundstücks und spannt damit einen maximal möglichen Aussen- raum zwischen den beiden Schulhäusern auf. Das terrassenartig abfallende Gelände wird als Platzfolge ausgebildet. Es findet seinen Abschluss im gedeckten Pausenplatz unter dem grossen Volumen der Aula.
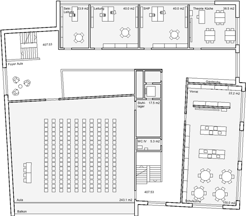
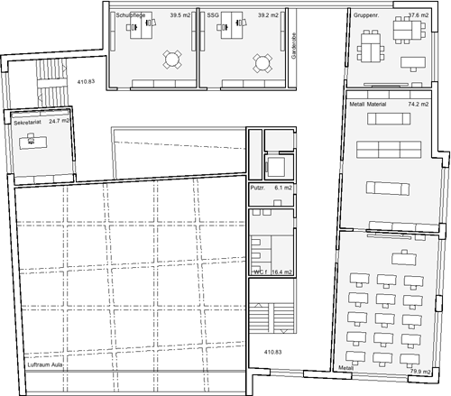
Wandscheiben und Geschossdecken bilden zusammen ein räumliches Tragsystem aus, das die raumhaltigen Auskragungen über dem Aussenplatz und beim Eingangsbereich ins Gleichgewicht bringt und so erst ermöglicht. Zudem wird durch die entstehende Abfangwirkung die Struktur der Obergeschosse vom Untergeschoss entkoppelt und so die nötige Flexibilität für ein effizientes Parking geschaffen.
- 年
- 2009





